Land For Sale in Penffordd Las, Llanbrynmair, Montgomeryshire
Former Builders Yard in the centre of Llanbrynmair Village which is currently a builders yard with a number of old buildings. Site extending to 671 sq.m. Corrugated Workshop 5.98m x 10.23m with staircase to Attic Store 7.88m x 4.49m; Adjoining Carport and some further small sheds, Former Timber S...
Former Builders Yard in the centre of Llanbrynmair Village which is currently a builders yard with a number of old buildings. Site extending to 671 sq.m. Corrugated Workshop 5.98m x 10.23m with staircase to Attic Store 7.88m x 4.49m; Adjoining Carport and some further small sheds, Former Timber S...
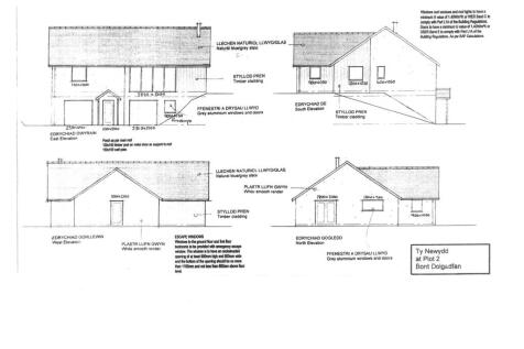
Residential Building Plot with Full Planning for One Dwelling in pretty village of Bont Dolgadfan. Contemporary split level design. Site extending to around 0.19 acres. Foundations & Retaining Walls built. Mains services available nearby. Newtown 18 miles, Machynlleth 11 miles. Elevated posi...


