Commercial Properties For Sale in Salford (District of)
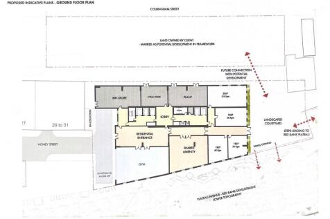
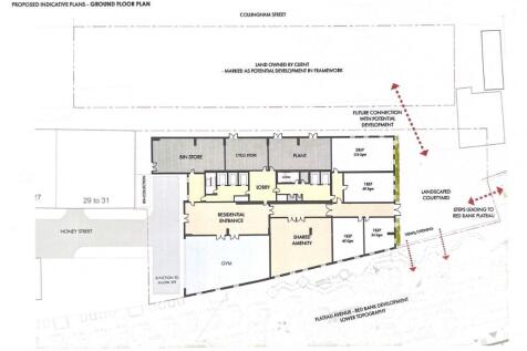
Two adjacent city centre sites for commercial/residential redevelopment, both sites income generating, available for sale.Site 1 - 0.4 Acre with £25,000 inc per annum.Site 2 - £55,000 inc per annum. Located in Redbank area of Manchester city centre, with large redevelopment activity nearby.
Graham + Sibbald are delighted to offer for sale, on an exclusive basis, the freehold interest in the property known as the Velvet Hotel, Bar & Restaurant. The business trades as Velvet Hotel, Bar and Restaurant, operating as a high quality Boutique hotel, with brasserie style restaurant and bar....
Graham + Sibbald & Knight Frank, are delighted to offer for sale, on an exclusive basis, the freehold interest in the property known as Forty Seven Peter Street. The business trades as Forty Seven Hotel, The Peterman Bar and Restaurant, operating as a high quality Boutique hotel, the hotel openi...
Situated in the heart of the Oxford Road corridor, Manchester's innovation district surrounded by knowledge institutions and cultural hotspots, offering a wealth of major leisure and commercial outlets. Surrounded by high rise developments of significant scale and mass delivered by industry lead...
Prime Freehold Office Investment in Manchester City Centre SUITABLE FOR INVESTORS AND OWNER OCCUPIERSExcellently positioned building benefitting from the successful redevelopment of Lincoln Square Total Floor Area of 11,948 sq.ft / 1,110.01 sq.m
The property is located on the south west of Charlotte Street at its junction with Faulkner Street in the heart of Manchester City Centre. Piccadilly Gardens is within close proximity and provides easy access to transport links including Metrolink and bus services. Piccadilly Train Station is l...
Albion Wharf is a purpose built canalside business centre behind an elegant, Grade II listed facade. Located close to the Greater Manchester Exhibition Centre and the Bridgewater Hall, surrounded by a mix of bars and restaurants at Deansgate Locks and other great attractions to enjoy and explore...
A substantial mixed use, retail and residential investment opportunity in a prime Manchester City Centre Location . Comprising 9 x 2 bedroom apartments and restaurant to ground floor and basement.Total accommodation comprises 8,085 sqft (747.34 sqm). Investment let at £136,500 per annum.
Attractive Grade II* listed bank and former office building extending to 10,033 sq ft NIA, across basement, ground, and 3 upper floors. Suitable for a variety of uses, including retail, leisure, offices, or a full redevelopment opportunity (STP). Freehold available with vacant possession.
The property is situated on the south east side of Chatham Street at its junction with Roby Street in the heart of Manchester City Centre. Piccadilly Gardens is within close proximity as is Piccadilly Train Station and Metrolink Station. All city centre shops, bars, restaurants, hotels and tran...
This impressive office building offers open-plan spaces and individual offices across the ground, first, and second floors, with additional storage in the basement. The premises feature separate ground floor and upper-level access, front electric shutters, kitchen facilities, and WCs on each floor.
The main unit is of steel portal frame construction with a solid concrete ground floor and cement asbestos sheet clad walls and roof. There is a canopy to both ends of the unit which has mains eaves height of 10m with an extensive mezzanine covering part of the unit. This area includes workspace,...








