Commercial Properties For Sale in Scottlethorpe, Bourne, Lincolnshire
Paid partnerships can play a role in listing order
Southfields House is a detached office building within which the ground floor is available to purchase on a long lease basis. The accommodation is laid out as open plan and partitioned offices benefiting from suspended ceilings, carpet flooring and comfort heating/ cooling.
Southfields House is a detached office building within which the first floor is available to purchase on a long lease basis. The accommodation is laid out as open plan and partitioned offices benefiting from suspended ceilings, carpet flooring and comfort heating/ cooling.
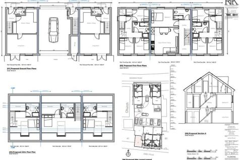
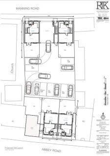
Fantastic Development Opportunity - Land with outline planning permission for four new dwellings - Rural location with countryside views - Please note neighbouring Barn with Planning permission for conversion also available by separate negotiation
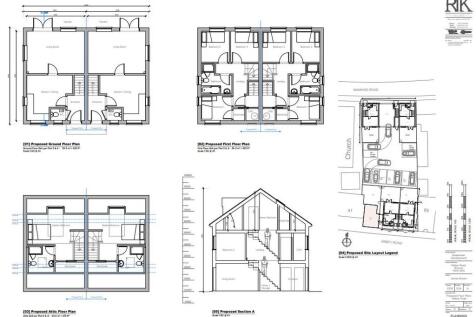
A unique opportunity has arisen to purchase two building plots with planning consent for two single storey dwellings. The plots are located in the very pretty hamlet of Hanthorpe with enviable views across open fields and countryside. Planning Consent granted Sept 2025 under ref s25/0987.





