Commercial Properties For Sale in Soham, Ely, Cambridgeshire
Paid partnerships can play a role in listing order
This two storey brick built building is ideally situated on the towns High Street, in the midst of local facilities and offers an excellent mixed use opportunity. Set over some 0.32 acres (stms), there is circa 4,400 sq ft internally and the building has been used by a world wide respected mar...
This two storey brick built building is ideally situated on the towns High Street, in the midst of local facilities and offers an excellent mixed use opportunity. Set over some 0.32 acres (stms), there is circa 4,400 sq ft internally and the building has been used by a world wide respected mar...
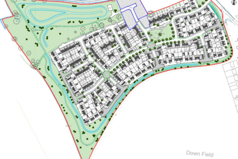
The plot offers an excellent opportunity for self-builders and is situated on the Newman Fields residential development on the northern outskirts of the town, providing direct access to Ely City and is less than 5 minutes’ drive from Soham rail station. The plot measures approximately 12...
The plot offers an excellent opportunity for self-builders and is situated on the Newman Fields residential development on the northern outskirts of the town, providing direct access to Ely City and is less than 5 minutes’ drive from Soham rail station. The plot measures approximately 9m...
The plot offers an excellent opportunity for self-builders and is situated on the Newman Fields residential development on the northern outskirts of the town, providing direct access to Ely City and is less than 5 minutes’ drive from Soham rail station. The plot measures approximately 8m...
The plot offers an excellent opportunity for self-builders and is situated on the Newman Fields residential development on the northern outskirts of the town, providing direct access to Ely City and is less than 5 minutes’ drive from Soham rail station. The plot measures approximately 8m...
Fantastic opportunity to own one of just eleven Self-Build Plots ranging in size from 207 square metres to 511 square metres situated on the northern edge of the new development off Fordham Road, Soham. The Self-Build Plots are suitable for the construction of two storey detached houses rang...


