Land For Sale in South West Scotland, Scotland
Welcome to this fabulous building plot in Lochranza, on the stunning Isle of Arran. This land offers a desirable setting to create a beautiful detached home in a tranquil and semi-rural setting. This competitively priced plot extends to approximately 6850 square feet, providing ample spa...
Lot 3 comprises 73.03 acres of upland hill land with possible planting and wind opportunities subject to the necessary permissions and consents. 1 of 5 availble Lots of Glenquicken Estate, or as a whole.
An exciting opportunity has arisen to acquire a substantial building plot with Planning Permission in Principle for the erection of a detached dwelling house. The plot is set within the charming coastal village of Skelmorlie, enjoying a tranquil setting surrounded by impressive mature trees ...
Two plots in an exclusive edge of town residential area, close to Barhill Wood. Plot 1 - 0.27 acres with PIP for one house Ref: 24/0698/PIP Offers over £80,000 Plot 2 - 0.74 acres with full PP for one house Ref: 23/0608/FUL Offers over £110,000
Fabulous building / caravan plot is being offered for sale at Mid Mayish, Brodick, Isle of Arran with spectacular views of the Sleeping Warrior, Brodick Bay and the Clyde. The site has planning permission in principle for a detached one half storey property, alternatively this site wou...
PLANNING PERMISSION GRANTED Set within the desirable and idyllic village of Uplawmoor, is this plot of land with planning permission granted for a two bedroom all on the level home. The East Renfrewshire village of Uplawmoor is especially popular with family buyers looking ...
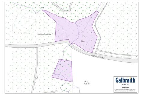
Lot 5 at Glenquicken is a site extenting to 4.71 acres. It comprises the former Creetown village water supply, and a ruinous former cottage - known locally as 'Billy Diamond's Cottage'. Development potential subject to the necessary permissions and consents.
The plot is located in the centre of the picturesque village of Dailly and has full planning consent for a detached three-bedroom house. The development site offers a great opportunity to develop into a fabulous residential property with open plan living and detached garage. The location also al...
Fabulous building / caravan plot is being offered for sale at Mid Mayish, Brodick, Isle of Arran with spectacular views of the Sleeping Warrior, Brodick Bay and the Clyde. The site has planning permission in principle for a detached one half storey property, alternatively this site wou...
An excellent opportunity to acquire 1 of 8 building plots with planning permission for a detached house designed to your own specification. Situated within a small development on the island of Cumbrae with all local amenities. Only a short ferry trip to the mainland. 8 plots available.




















