Commercial Properties For Sale in Springfields, Attleborough, Norfolk
This site, in the attractive village of Caston, approximately 18 miles south west of Norwich and 7 miles north west of Attleborough has good access to the A11 tech corridor. The site is generally level and ready for development shortly, subject to the approval of all reserved matters. Offering pl...
This site, in the attractive village of Caston, approximately 18 miles south west of Norwich and 7 miles north west of Attleborough has good access to the A11 tech corridor. The site is generally level and ready for development shortly, subject to the approval of all reserved matters. Offering pl...
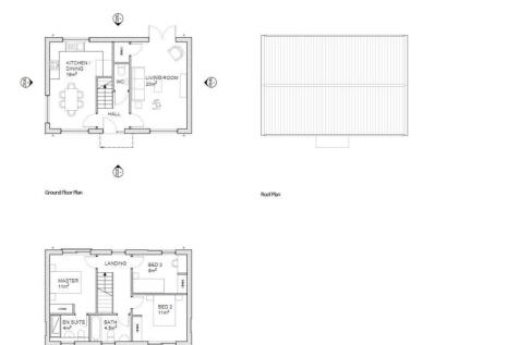
abbotFox Land & New Homes presents this serviced plot measuring 0.35 acres (stms) in a much sought after, quiet location overlooking fields just off the A11 corridor. Planning permission has been granted for a four bedroom bedroom detached bungalow. Permission has been obtained. Confirma...
A sizeable Plot with Planning permission granted for a four bedroom detached bungalow. Breckland Council planning portal reference PL/2024/0807/FMIN. The Plot has a beautiful field view and is located in a quiet semi rural location close to Attleborough and Wymondham.
















