
The Street, Caston, Attleborough
- PROPERTY TYPE
Plot
- BEDROOMS
3
- SIZE
Ask agent
Key features
- Attractive Village Location
- Adjacent to Primary School
- Planning for 5 Dwellings
- Generous Plot Sizes
- For Sale by Private Treaty
Description
Description - The subject property is a well proportioned development site with access straight from the street. It is laid to grass, and is level
Planning - Reserved matters were approved on 28th September 2022 (3PL/2021/0223/D)
The original consent was for the development of 5 detached dwellings.
It also incorporates the development of a car park for use by the primary school on land to the front. The intention is that the primary school will take over the maintenance of the car park.
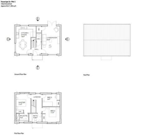
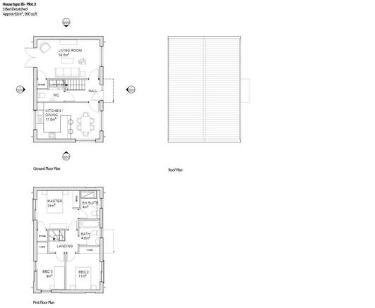
Accomodation - We understand the residential units will have approximate gross internal areas between 990SqFt and 1485SqFt.
Services - Although initial investigations were undertaken during the planning application process, prospective purchasers are advised to ensure the availability of adequate services at the site by contacting the relevant utility providers.
Terms - The freehold interest in the property is available for sale with offers in the region o £525,000 exclusive
Legal Costs - Each party is to bear their own costs
Vat - Our client reserves the right to charge VAT in line with current legislation
Brochures
The Street, Caston, AttleboroughBrochureThe Street, Caston, Attleborough
NEAREST STATIONS
Distances are straight line measurements from the centre of the postcode- Eccles Road Station6.2 miles
Notes
Disclaimer - Property reference 32378713. The information displayed about this property comprises a property advertisement. Rightmove.co.uk makes no warranty as to the accuracy or completeness of the advertisement or any linked or associated information, and Rightmove has no control over the content. This property advertisement does not constitute property particulars. The information is provided and maintained by Arnolds Keys, Norwich. Please contact the selling agent or developer directly to obtain any information which may be available under the terms of The Energy Performance of Buildings (Certificates and Inspections) (England and Wales) Regulations 2007 or the Home Report if in relation to a residential property in Scotland.
Map data ©OpenStreetMap contributors.








