Land For Sale in Tower View, Barnstaple, Devon
Paid partnerships can play a role in listing order
An exceptional chance to create your very own Grand Design in the heart of North Devon. This rare opportunity comes with full planning permission to replace an existing agricultural building with a striking, contemporary three-bedroom home, set in around 15 acres of land. Available in 1 or 2 lots...
An exceptional chance to create your very own Grand Design in the heart of North Devon. This rare opportunity comes with full planning permission to replace an existing agricultural building with a striking, contemporary three-bedroom home, set in around 15 acres of land. Available in 1 or 2 lots...
Productive grass land with stunning views over the River Taw estuary towards Crow Point and Saunton. Approximately 30.28 acres (12.25 hectares). Accessible location between Barnstaple and Instow. HAs previously been used to grow cereal crops. For sale by private treaty. FREEHOLD.
A barn with planning consent for conversion to a single storey residential dwelling set within 8.26 acres of pasture land. Proposed accommodation includes four bedrooms two with ensuite facilities), open plan living space, a separate bathroom and utility room. Two fields with A park like setting....
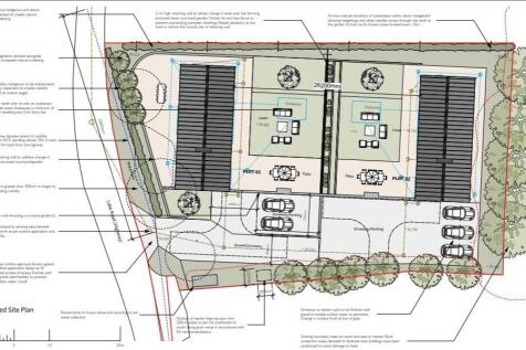
A virtually unique opportunity to acquire a well-located accessible development site for the erection of 6 two bedroom bungalows. GDV about £2.25m. The site is central to an existing mature cul de sac development of bungalows at Sticklepath in Barnstaple the administrative center for North Devon...





