Commercial Properties For Sale in Trenewydd, Cowbridge, South Glamorgan, Vale Of Glamorgan, The
The property comprises approximately 6.55 acres of pastureland within a single enclosure, as outlined in red on the attached plan. The land is easily mowable with potential considered for agricultural, equestrian and amenity use. There is currently planning permission for an agricultural Barn, wh...
OVERVIEW 26.5 acre multi-let industrial estate 68 units 78,247 sq m / 842,274 sq ft (or 19.34 acres of lettable space) Close proximity to St Athan Aerospace Park Easy access to major road network Strong opportunities for rental growth through asset management OVERVIEW 26.5 acre multi-let industri...
Cowbridge is an affluent market town in the Vale of Glamorgan approximately 12 miles west of Cardiff city centre and 6 miles east of Bridgend. The property is a prominent two-storey, mid-terraced retail unit that is to be sold with full vacant possession.
Orchard Business Park is new development of 6 terraces of units, comprising of 44 units within a landscaped environment. The estate offers a clear open space and includes on-site amenities with the possible inclusion of a cafe. Each unit offers ground floor accommodation only, although the bui...
Orchard Business Park is a new development of 6 terraces of units, comprising of 44 units within a landscaped environment. The estate offers a clear open space and includes on-site amenities with the possible inclusion of a cafe. Each unit offers ground floor accommodation only, although the b...
Wern Fawr Farm presents a rare opportunity to acquire approximately 212 acres and a range of farm buildings on a productive livestock farm located a short distance from the market town of Cowbridge. Also available as a whole Wern Fawr Farm comprises a detached five bedroom farmhouse subje...
Location For Sat Nav users: Postcode CF71 7AF The property is prominently located on the High Street in the historic town of Cowbridge in close proximity to a number of restaurant, cafes and pubs. Cowbridge is an affluent commuter town in the heart of the Vale of Glamorgan. Bridgend is l...
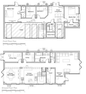
In a glorious location close to Aberthin Village yet looking out over fields and farmlands to the rear and also towards 'Stalling Down', two serviced plots available, each with Planning Permission for a detached, 4 bedroom family home. Plans include kitchen open plan to a family living-dining are...
40 Eastgate comprises a traditional mid-terraced building fronting Eastgate. Previously occupied by Ladies Fashion Retailer 'Kathy Gittins' who are selling due to retirement. It comprises a lock up ground floor retail space with separate storage and kitchen and enclosed courtyard garden to ...
Freehold, stone, agricultural barns located in the popular village of Llandough for sale by private treaty. Llandough is just a few minutes drive from the market town of Cowbridge with its excellent local facilities including a wide range of shops both national and local, library, health...
The property is located on Darren Hill, a gate way location to the historic town of Cowbridge. Cowbridge is an affluent commuter town in the heart of the Vale of Glamorgan. Bridgend is located approximately 6 miles to the west and Cardiff is approximately 12 miles to the east. There is a mai...
Plot of land to the rear of Halfway Tree in the centre of Graig Penllyn village, complete with planning permission for a three bedroom detached house. Permission granted to include; hallway, cloakroom, open plan living-kitchen-diner opening to rear garden and study. Three bedrooms and bathroom to...
Situation The land is located in Pendoylan, a small rural village in the Vale of Glamorgan. Pendoylan is situated approximately 2 miles south of Junction 34 of the M4 motorway and approximately 2 miles north of the A48. The land is situated to the west side of the road leading from Clawdd...
The land comprises of approximately 5.29 acres of agricultural land. The land has, we are informed, been recently tenanted, mainly used for sheep grazing and mowing. The land is easily mowable with potential considered subject to any planning permission for agricultural, equestrian and amenity use.
The property comprises approximately 6.55 acres of pastureland within a single enclosure, as outlined in red on the attached plan. The land is easily mowable with potential considered for agricultural, equestrian and amenity use. There is currently planning permission for an agricultural Barn, wh...
Lot 2 of Llwynrhyddid Farm extends to approximately 6.61 acres (2.68 hectares) of predominately level to gently sloping in part land with internal stock proof fencing comprising of a mixture of livestock fencing with mature hedgerow boundaries. The property benefits from direct roadside access.
Situation The land is located in City, a small rural village in the Vale of Glamorgan. City is situated approximately 2 miles north of Cowbridge, and approximately 3 miles north of the A48. The land is situated to the west side of the road leading from City to Llansannor Church in Wales P...
Lot 3 of Llwynrhyddid Farm extends to 2.41 acres of woodland. The land is predominately level to gently sloping in part with internal stock proof fencing comprising of a mixture of livestock fencing with mature hedgerow boundaries.




