Commercial Properties For Sale in PE31
The Common extends to approximately 82 acres (33 hectares) in a single parcel divided only by a minor country road and offers a broad range of opportunities, with a rich diversity of flora and fauna, very much a popular attraction for walkers and visitors from far and wide.
Central village location. Existing buildings with potential for redevelopment. Two separate vehicular access points. This development property will be available as a whole or in two lots comprising of: Lot 1: The Old Dairy Building and yard area Lot 2: The Traditional Barn, Float Shed and yard
For sale via secure sale online bidding - terms and conditions apply. Located on Stanhoe Road in the charming village of Docking, King's Lynn, this exceptional building plot offers a unique opportunity for those looking to create their dream home in a picturesque setting. With breath taki...
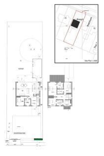
For sale via secure sale online bidding - terms and conditions apply. We are pleased to offer this individual building plot, with planning consent to construct a modern and highly individual single-storey property, in the popular coastal village of Heacham. Designed by award-winning local ...
Located on Stanhoe Road in the charming village of Docking, King's Lynn, this exceptional building plot offers a unique opportunity for those looking to create their dream home in a picturesque setting. With breath taking views of the stunning rural Norfolk landscape to the rear, this location is...





