to
Area
Price
-
Size
-
Property type
Office
Retail
Leisure / Hospitality
Industrial / Warehouses
Land / Development
Other
Property details
Must haves
Don’t show
Commercial Properties For Sale in BS7
Prioritise properties with...
A PROVIDER OF OFFICE SUPPLIES , Bishopston, Bristol
Shop
Bishopston, Bristol. Generated a turnover circa £298,000, with an adjusted EBITDA in excess of £55,000. Its comprehensive offering includes office supplies, printer and printing supplies, ink cartridge refills, binding and printing services. Has built and maintained long-standing cust...
Additional commercial listings
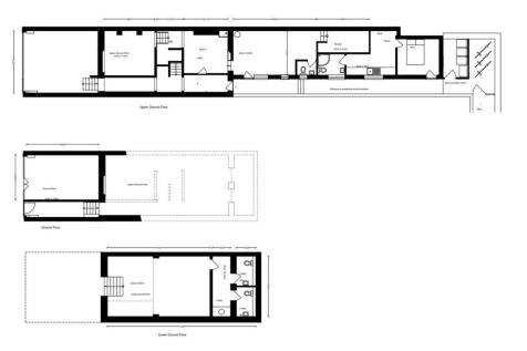
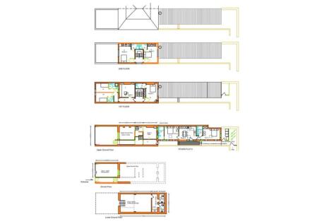
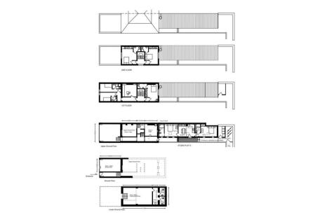
Development Site on Gloucester Road, Bishopston
Residential Development
A development site situated in a highly desirable location on Gloucester Road, Bishopston. Full planning consent has been granted for the demolition of the existing buildings and construction of a single residential blocking comprising a Sui Generiss HMO and a Use Class C1 aparthotel.
Page of 1

























