Commercial Properties For Sale by Braveheart Auctions Limited, Edinburgh, including sold STC
51 results
Excellent commercial investment opportunity. Purchased for £80,000- Massive reduction and potential for capital growth. Welcome to 5 Argyll Street - a rare commercial opportunity in the heart of Lochgilphead, Loch Fyne, offering excellent visibility, strong footfall, and outstanding potential a...
3-storey, symmetrical 7-bay, Edwardian Baroque former theatre and cinema located in the heart of the thriving commuter town of Kilmarnock offering a massive opportunity for development. This building enjoys a massive presence in the centre of the town and offers potential for multiple uses with ...
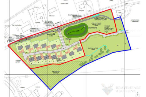
Planning permission granted in principle for 16 houses in stunning location approximately 7 miles from Inverness City Centre. Site measures 7.88 Acres and enjoys excellent access from the main road. Completed development value of £ 6million- £7 million 7.88 Acres of land with planning permission...
Excellent development and investment opportunity. Well-established retail premises sold with Grade A tenant paying over £16,000 per year and additional planning permission granted for 5 apartments on the upper floors. 36-38, Channel Street, Galashiels is a prime commercial premises on the ground...
Incredible investment opportunity in the heart of the popular borders town of Galashiels. Massive, 17,500sqft commercial property in popular Scottish borders town of Galashiels. Potential rental income in excess of £50,000 per annum representing an incredible potential yield of 30%. The propert...
-PERFECT Investment/Development opportunity! HUGE 2 storey prominent full corner unit in the heart of Kilmarnock Town Centre- (Ground floor 272.21sqm, First floor 396.97sqm). Previously sold for £600,000. -14 and 16 Portland Street are 2 separate units with individual entrances and highly visibl...
Tenanted Town Centre Commercial Unit 36-38, Channel Street, Galashiels is a prime commercial premises on the ground level you will find the stable, long term tenant of over 20 years who has extended their lease by a further 5 years on 9/9/2024. Savers owned by AS Watson Health and Beauty is a h...
Vacant Commercial Unit - 13B Durie Street, Leven, Fife. Realistic potential rental income of up to £18,000 per year (£1,500 per month) in high demand location approximately 30 miles from Edinburgh. Located in a prominent position on one of Leven's well-known thoroughfares, 13B Durie Street offe...
Stunning newly fitted Salon for sale on High Street in Cowdenbeath, offering rental income of £1,200 pcm (£14,400 per year). Discover an exceptional opportunity to purchase a beautifully presented, fully equipped salon in a prominent trading position on Cowdenbeath's busy High Street. Turn-key a...
1 Acre plot in stunning location on the banks of the Dornoch Firth in the historic village of Ardgay. The plot is offered with planning permission granted in principal for the erection of 5 bedroom detached property and includes a solidly sited 3 bedroom caravan (6 beds) - with full planning con...
Large plot of land with excellent access and PLANNING PERMISSION GRANTED for erection of house with internal garage in excellent location in the affluent village of Spean Bridge. Excellent for investor/ developer/ builder or self-build. Planning has been extended and will be sold with planning ...
Plot with planning in amazing coastal location in the popular Fife town of Burntisland. Beautiful plot set on the Firth of Forth with planning permission and building warrant granted for the erection of a 3/4 bedroom detached house and garage. The plot has been measured at 484sqm and offers a r...
Outstanding FREEHOLD commercial investment opportunity for a large commercial unit in a busy high street trading location. Large retail unit in the heart of Denny Town Centre in prime trading position offer potential rental value of up to £900 per month (£10,800 per year) giving potentially outs...
Immediate income producing investment in the heart of the affluent costal town of Largs. Fully refurbished unit in busy town centre. Ideal investment opportunity in high demand rental location offering an outstanding yield with immediate rental income of £550 per month (£6,600 per annum) with se...
Outstanding FREEHOLD opportunity in stunning Scottish Highland Location. Derelict property on large plot (779sqm) offering potential for development in beautiful setting minutes from Loch Mohr and minutes from the banks of Loch Ness. Amazing opportunity to create your dream home or the perfect ...
Massive waterside plot (3.77 Acres) with huge riverside frontage, FISHING RIGHTS and roadside access in beautiful setting on the banks of the Balvaig River. This amazing Scottish land for sale has been measured at 15,277sqm and is located in one of the most attractive and accessible areas of Sc...
Outstanding development opportunity. Large freehold plot (2,320sqm- 24,972 sqft) with excellent access in attractive and popular residential area, close to local schooling in the popular Ayrshire commuter town of Muirkirk by Cumnock. Planning permission was previously granted for a 5 bedroom de...
Excellent commercial investment opportunity. Purchased for £80,000- Massive reduction and potential for capital growth. Welcome to 5 Argyll Street - a rare commercial opportunity in the heart of Lochgilphead, Loch Fyne, offering excellent visibility, strong footfall, and outstanding potential a...
Former White Swan Hotel, 554 Wellesley Road, Methil, KY8 3PE Outstanding opportunity for developer/ landlord or owner occupier. Former White Swan Hotel Bar and cellar/ basement offering potential for immediate use and potential for multiple uses including conversion to 2 bedroom residential pro...
300sqm plot in the desirable semi-rural Ayrshire village of Darvel. Braveheart are delighted to present to the market this fantastic 300sqm (30x10m) plot on Lochore Terrace in Darvel. The site has planning in principle for the erection of a dwellinghouse and all the relevant documentation can b...
Amazing opportunity to own your dream plot (22,130.6 Sqft) in this stunning location in the Scottish Highlands close to the famous North Coast 500 Tourist route. Planning in principal application lodged for detached dwelling. Planning Number 25/04611/PIP Ideal location for a stunning family hom...
Freehold Building plot in stunning location over looking Wick Bay. The land is the site of a former house- the house has been demolished. The plot is offered without planning permission but the fact that a house previously stood on the plot is normally a positive indicator that planning permis...
Commercial investment opportunity on the busy High Street of the cathedral city of Brechin. Ground floor, main door commercial unit in excellent trading position with highly visible frontage offering potential for multiple uses and potential for excellent income and a strong return on investment...
Outstanding opportunity on stunning location on the outskirts of the capital of The Highlands, Inverness. 1,678sqm (18,061sqft) of land located in the affluent village of Inchmore by the Beauly Firth approximately 7 miles west of the historic city of Inverness. The plot is part of a larger site...
Modernised Ground Floor Commercial Unit with highly prominent frontage and prime corner position in the popular costal town of Fraserburgh. Good sized retail unit with potential for multiple uses in excellent trading position close to major attractions and employers. The unit previously traded ...





























