5 results
Paid partnerships can play a role in listing order
A substantial retail A1 unit situated in a prominent location, set across several levels with a good shop frontage.
Mid terrace double fronted retail unit
Ground floor retail premises (313sqft)
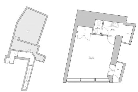
A modern ground floor retail unit in central Caernarfon.
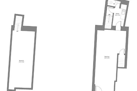
A modern ground floor retail unit, with basement storage, in central Caernarfon.
Copyright © 2000-2025 Rightmove Group Limited. All rights reserved. Rightmove prohibits the scraping of its content. You can find further details here.