Commercial Properties To Let in Elland, West Yorkshire
The property comprises a substantial rectangular shaped concrete surface site of level topography benefiting from; Secure gates access Close proximity to the M62 Motorway Network Concrete hard surface The access to the site is provided via an existing roadway off Lower Edge Road.
The premises once refurbished will comprise a modern, single storey industrial unit with two storey offices situated on Lowfields Business Park, benefitting from: - Solid concrete floor - Drive in access via a roller shutter - Secure yard extending to approx 0.5 acres - New first floor office f...
To Let - Combined warehouse unit with full height 2-storey office accommodation. Per sq ft £9.25 per sq ft The property is a modern detached second-hand warehouse / industrial unit of steel portal frame construction with profile clad elevations beneath a profile clad roof. The of...
The property comprises a modern detached steel portal framed industrial unit incorporating two storey offices and substantial mezzanine facility benefitting from: Minimum internal working eaves height to haunch of 6.60mtrs (21.5ft); Two No. 4.10M(w) x 5.04M(h) drive-in loading doors; Modern t...
Lofty single storey brick building under a clearspan roof with 2 x full length full bay modern 10 tonne Donati 9m ''under the hook'' cranes. The warehouse includes an office, canteen and works toilets. Adjoining the works are newly refurbished offices which do not impact on the main engineering/...
The property comprises a ground floor industrial unit with large private yard/car park with galvanised steel palisade fencing. The premises benefits from a solid concrete floor with drive in access via the service yard through a steel roller shutter, 3-phase electricity and an eaves height of 3.2...
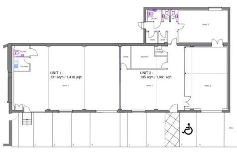
Location The property is located along Southgate in the heart of Elland Town Centre. Elland is a busy Market Town within the Metropolitan Borough of Calderdale, with Southgate serving as its principal retailing parade. Major nearby occupiers include the One-Stop Convenience Store, Betfred Bookma...
The property briefly comprises a single storey, end of terraced, steel portal framed industrial unit. The property benefits from having: - Electrically operated roller shutter door access; - Solid concrete flooring; - Secure shared yard area; - Small internal works office; - LED lighting; - 24 h...
The property comprises a single storey ground floor unit situated on Rosemount Estate with access from Newcombe Street, Elland. The property is well presented and has the benefit of having open plan accommodation on entering with two separate meeting rooms/offices, large kitchen, relevant WC faci...
The property briefly comprises a single storey, steel portal framed industrial unit located at the end of a terrace of similar units. The property benefits from having: - Electrically operated roller shutter door access; - Solid concrete flooring; - Secure shared yard area; - WC facilities; - Of...
The premises briefly comprises a prominently positioned substantial corner retail unit fronting onto busy intersection within Elland Town Centre. The stone built property provides retail accommodation at ground floor level and benefits from having large return frontages to both Huddersfield Roa...
The property will comprise a newly refurbished single storey industrial unit situated on Rosemount Estate with access from Newcombe Street, Elland. The property (once refurbsihed) will benefit from having: - Drive in access via a steel roller shutter; - Newly painted, solid concrete floor; - ...
Constructed in 2017, Gannex House comprises a modern office development benefitting from a high-specification finish. The property offers a ground floor suite, benefitting from: - Private kitchen & relevant w/c facilities to include disabled; - Reception entrance lobby; - On site designated car...
These well-presented office premises are part of a multi-occupied office building. The offices extend to 70.17m² (755ft²) and have the benefit of its own Kitchen and WC which is fully self-contained with a store room off the main entrance lobby. The offices have the benefit of on site c...
The premises briefly comprises a ground floor retail unit and first & second floor accommodation with independent access, located along Victoria Road in Elland. The ground floor retail unit is well presented and benefits from having frontage on to Victoria Road, kitchen, w/c facilities, gas cen...
The property comprises a Grade II Listed former Canal moorings warehouse which has been sympathetically restored and converted to provide high grade office accommodation overlooking the Calder & Hebble Navigation Canal. The principal building provides a combination of open plan suites benefitti...
The property briefly comprises a ground floor retail unit benefiting from an open plan configuration having a large shop frontage to the busy Victoria Road, one of the major routes running through Elland Town Centre. The property benefits from vinyl floor covering, paint and plastered walls, fluo...
The office premises have been refurbished to a high standard and are multi-occupied. The offices extend from 14.68m² to 19.79m² and have the benefit of a shared kitchen area, waiting area and toilet facilities. The offices have the benefit of on site car parking to the rear, subject to n...

















































































