Commercial Properties To Let in Heaton, Bolton, Greater Manchester
This property has under taken extensive work in recent years and now provides high quality offices. The subject office is located on the ground floor and has spotlighting, carpet flooring, radiator and a window with fitted blinds. Shared facilities also include a highly presentable rec...
Various Suites available from 388 ft2 - 8,155 ft2. Available on a suite by suite basis or entire floor. The £5 million refurbishment of this characterful period building has included the creation of a fully-glazed central atrium which floods the building with natural light as well as creating ...
A detached Victorian two storey office building with a basement, which was originally built as a residential dwelling. The property is constructed of solid brick elevations under a pitched slated roof with PVC rainwater goods and a mixture of double glazed and timber and PVC glazing. Internally...
The available accommodation is currently occupied by DMS Group, the premises benefit from two entrances with glazing and partly coated aluminium surrounds, the ground floor consists of a WC and kitchen area, together with suspended ceiling and tiled carpet throughout. The first floor also has a ...
A unique opportunity to tenant space in a multi-let leisure scheme in the heart of Bolton, comprising ground floor retail units. A selection of ground floor units from 37 sq m to 218 sq m, offering flexible terms. High quality retail units located in a vibrant development with landscaped public r...
The subject property provides a single story semi detached hybrid unit, which provides a mix of industrial and office space. The industrial space is suitable for light manufacturing or storage use. The office provides an open plan office space, which is well appointed throughout and also has the ...
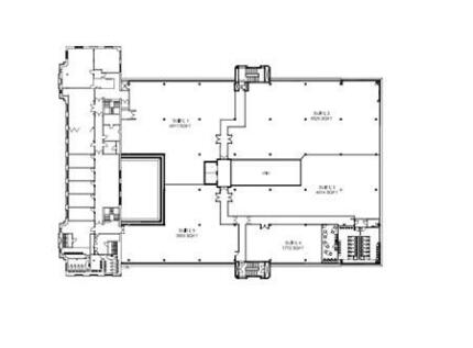
Atria is a newly refurbished office building located within Bolton town centre and a short walk from the town centre amenities such as The Market Place shopping centre and the bus / rail stations. The building is accessed through a prominent entrance just off Spa Road.
Current Availability & Rental Suite 7 - Ground Floor (484 sq ft) - £675.00 per calendar month/£8,100 per annum - Parking 2 spaces Suite 9 - First Floor (215 sq ft) - £425.00 per calendar month/£5,100 per annum - Parking 1 space Suite 12 - First Floor (215 sq ft) - £425.00 per calendar month/£5,10...
This property has untaken extensive work in recent years and now provides high quality offices. The subject office is located on the lower ground floor and is a full suite with its own kitchen/staff room and shower room. The office had spotlighting, carpet flooring, radiator and a window with fit...
The subject property provides a 1st floor self contained office premises within a larger mid terrace office building, finished to a high specification throughout. The first floor accommodation provides a lobby entrance area leading to the 1st floor office. Here we have an open plan office area, ...
Gorgeous spacious offices on the 1st floor with loads of light available in a sympathetically refurbished building, retaining many original features. The offices have private intercoms, communal facilities, and 24hr access. All uses considered, but perfect for a professional off...
Michigan House comprises a prestigious, mid-terraced garden fronted period office building of traditional construction and set beneath a pitched and slated roof covering. Internally, the general accommodation is arranged over ground floor and first floor and consists of a number of well presente...
The subject property comprises a traditionally constructed, garden fronted Victorian semi-detached property. The premises are constructed of solid brick elevations under various pitched and slated roof coverings. Internally, the accommodation provides for majority plaster painted walls and ceil...
The subject property comprises a period, two storey semi-detached property of traditional masonry construction, set beneath a pitched and slated roof covering. the property offers a well-proportioned, unfurnished ground-floor office suite extending to approximately 44.07 sq m (23.22 sq ft). Its ...
ONLY 2 SUITES LEFT! *INCENTIVES AVAILABLE* Hamill House is located on a prominent and prestigious location on Chorley New Road and is home to a range of professional business clientele. The welcoming reception area is designed to be unbranded, offering that all important first impression for yo...
This property has under taken extensive work in recent years and now provides high quality offices. The subject office is located on the ground floor and has spotlighting, carpet flooring, radiator and a window with fitted blinds. Shared facilities also include a highly presentable rec...
A variety of office units available in a prime location on Chorley New Road. Ideally placed with a selection of sized units available this will suit many business options and can be viewed by appointment. The units are offered inclusive of bills and wifi with some basement units ideal for...
































