Land To Let in NG (Postcode Area)
Paid partnerships can play a role in listing order
Unlock the perfect grazing opportunity with this exceptional parcel of land available to rent just one mile from Long Eaton Town Centre. Nestled alongside the stunning Attenborough Nature Reserve, this scenic location offers both convenience and natural beauty.
The site is broadly rectangular and provides a total area of 5.80 acres (2.35 hectares), comprising a predominantly hard surfaced level site. The boundary fronting onto Blenheim Park Road is secured by a row of sea containers which can be removed if requested.
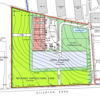
The site is broadly rectangular in shape and comprises the last remaining plot of the former Summit Colliery. The site extends to approximately 3.8 acres. The site has been remediated and is bounded by industrial units to the south and east.
A 2.6 acre development site available for design and build opportunities within NG2 Business Park. The site is suitable for a range of commercial uses, including office, industrial, or mixed use development, subject to planning. Bespoke buildings can be designed to meet occupier requirements.
The 1.23 acre (0.5 hectare) site is currently used as a car park. The Landlord will consider developing the site to suit occupiers requirements, subject to planning. The indicative scheme plans to the overleaf demonstrate a possible configuration of the site.
The property will comprise a detached portal frame industrial unit incorporating single storey offices and ancillary facilities. The offices will be fitted out to include carpeting / gas fired central heating / Category 2 light fittings and suspended ceilings. A site plan is attached. Full pla...
The demise comprises an area of tarmacked land previously used for car parking. Gating and fencing will be installed partitioning off the space to interested parties requirements. Please contact the agent for further information. The land benefits from CCTV and lighting to be installed.
Seize this rare chance to lease prime land along the picturesque Lake, perfect for fishing, leisure, and sports activities, next to the Attenborough Nature Reserve and Spring Lakes. This unique offering includes fishing rights, giving you unmatched access to serene water and abundant natural beauty.
Seize this rare chance to lease prime land along the picturesque River Trent, perfect for fishing, leisure, and sports activities, next to the Attenborough Nature Reserve.This unique offering includes fishing /mooring rights, giving you unmatched access to serene water and abundant natural beauty.
Martin & Co. are delighted to advertise this 5.9m x 9.9m large unit set in a rural village. This unit is high ceilings, has electric and water supplies, outdoor space and a large roller shutter door. There is a shared toilet next to the unit which is cleaned professionally. The roller shutte...





