Commercial Properties To Let in Nottinghamshire
**Furnished offices ready to go | Short-term flexible agreement** This fully restored Victorian building is within walking distance of Nottingham city centre. The fixed monthly rent includes rates, all utilities, a professional reception, use of meeting rooms, on-site parking, and more.
The site is broadly rectangular in shape and comprises the last remaining plot of the former Summit Colliery. The site extends to approximately 3.8 acres. The site has been remediated and is bounded by industrial units to the south and east.
For Sale / To Let. Ready to occupy Q3 2024 onwards A 21st century logistics and manufacturing hub offering 392,000 sq ft of high-specification floor space from 30,000 to 150,000 sq ft. Specification: Units from 30,000 to 150,000 sq ft Allocated for B2 and B8 use High-specification sustaina...
A 2.6 acre development site available for design and build opportunities within NG2 Business Park. The site is suitable for a range of commercial uses, including office, industrial, or mixed use development, subject to planning. Bespoke buildings can be designed to meet occupier requirements.
DESIGN AND BUILD available on PRIME 40 acre (16.2 Ha) business park with frontage to the A1 and close to A46 and A17 junctions. UNITS AVAILABLE FROM 5,000 sq ft to 100,000 sq ft. Perfect location for distribution warehousing, trade counter, storage and light industrial uses. All enquiries welcome
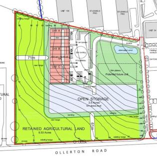
TO LET - OPEN STORAGE LAND SUMMARY - Open Storage Land - 2.5 Acres - Available as a Whole or Split - Suit Various Uses - Fenced, Secure & Surfaced - 1.4 Miles To The A1 (M) - Available Q3 2025 LOCATION The site is located on Ollerton Road in Tuxford, offering excellent access to the A1 via ...
Commercial site extending to approximately 2.233 ac (0.904 ha) Zoned for industrial development (B1, B2 and B8 uses) Secure site, fully fenced and hard-core surfaced Close proximity to Keltruck depot, B&Q and Bannatyne Health Club Easily accessible to M1 motorway (Junction 30) and the A1
TO LET - 2 ACRES OF OPEN STORAGE LAND AVAILABLE SUITABLE FOR VARIOUS STORAGE, CAR STORAGE, HAULAGE, RAIL AND LOGISTICS OCCUPIERS. 2 acre plot available Surfaced, secure & fenced site Hardstanding Concrete access roads Business park location close to Doncaster Sheffield airport Very secur...
The detached unit comprises a best in class industrial/warehouse building of steel portal frame construction offering Grade A specification with enhanced ESG features. -6 Dock Level Doors -2 Level Access Doors -Up to 45 HGV Parking Spaces -77 Car Parking Spaces (6 EV Charging) -12.5m Eaves Heigh...
Loxley House is one of Nottingham's major office buildings, with fully glazed elevations and some of the largest open plan floor plates in the city, all of which overlook a full height central atrium allowing excellent natural light throughout the building, with peaceful vistas overlooking the No...
The property comprises two steel portal framed warehouses and a large concrete yard. Unit 1 provides road facing two storey offices. A comprehensive refurbishment will be undertaken in 2025. The building will be available from November 2025. On completion of the refurbishment, Unit 1 will ha...




























