Properties For Sale in Kilkenny
17 results
LOCATION: Historically known as the medieval Capital of Ireland, Kilkenny is the smallest city with the biggest heart. A great cultural centre dotted with many historic buildings, narrow winding streets and oodles of character and charm. (contd...)
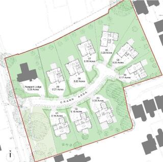
Newpark Lodge is a landmark detached Victorian residence in one of Kilkenny's premier areas. The location on Castlecomer Road will appeal to buyers looking for a convenient and leafy location just minutes from Kilkenny City Centre. (contd...)
Description This stunning site is located C. 4km from the city centre on the Thornback Road and enjoys panoramic views of the city. The site was planted and post and railed into paddocks while a hardcore entrance roadway was also installed. (contd...)
To see current offers or place your own offer on this property, please visit SherryFitz.ie and register for your mySherryFitz account. The subject property comprises a mid terrace 2 storey retail unit situated at Coffee House Lane off High Street, Kilkenny. (contd...)
Rates updated every 24hrs and provided by Lumon
Visit our currency page






