
Village Farm, Main Street, Bisbrooke, Oakham
- PROPERTY TYPE
Land
- SIZE
Ask agent
Key features
- A prime Rutland village development site with good views
- There is direct vehicular access to the site off Main Street.
- Mains three-phase electricity. Mains water. The village of Bisbrooke has connection for gas, water, sewerage and fibre optic broadband.
Description
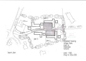
CENTRE OF THE VILLAGE, FULL ACTIVATED PLANNING PERMISSION DATING FROM 2008
FOR FOUR DWELLINGS WITH POTENTIAL FOR REDESIGN
Location: - Village Farmyard is situated in the centre of the village of Bisbrooke in Rutland, approximately 1 mile east of the market town of Uppingham and ½ mile south of the A47 as shown edged red on the site sale plan included with these particulars.
Description: - A prime Rutland village development site with good views.
Planning Permission: - Planning Permission was granted by Rutland County Council District Council in 2008 under reference FUL-2008-0617 for demolition of all existing buildings and erection of four detached dwellings. The consent was activated by construction of the access and discharge of all conditions. Documentation is available from the selling agents or online at Rutland District Country Council.
Community Infrastructure Levy (Cil): - Purchasers are advised to make enquiries to Rutland County Council District Council.
Tenure: - Freehold with vacant possession on completion.
Access: - There is direct vehicular access to the site off Main Street.
Rights Of Way: - There are no known rights of way over the land.
Services: - Mains three-phase electricity. Mains water. The village of Bisbrooke has connection for gas, water, sewerage and fibre optic broadband.
Easements & Wayleaves: - The land is sold subject to any existing wayleaves and easements. The Vendor will reserve a right of way to retained farmland east of the site for which there is no other access. The right of way will be in perpetuity along a mutually agreed route a minimum of four metres wide from the public highway to point A on the plan included in these particulars.
Covenants & Overage: - We are not aware of any covenants over the land.
Viewing: - Strictly by appointment with Shouler & Son, Country Chambers, Kings Road, Melton Mowbray, Leicestershire, LE13 1QF
Solicitors: - Chattertons Solicitors, 9 Broad Street, Stamford, Lincolnshire PE9 1PY
Plan: - The plan is Crown Copyright and for identification purposes only.
Vat: - VAT is not payable on the purchase price.
Brochures
BrochureVillage Farm, Main Street, Bisbrooke, Oakham
NEAREST STATIONS
Distances are straight line measurements from the centre of the postcode- Oakham Station6.2 miles



Notes
Disclaimer - Property reference 31524511. The information displayed about this property comprises a property advertisement. Rightmove.co.uk makes no warranty as to the accuracy or completeness of the advertisement or any linked or associated information, and Rightmove has no control over the content. This property advertisement does not constitute property particulars. The information is provided and maintained by Shouler & Son, Melton Mowbray. Please contact the selling agent or developer directly to obtain any information which may be available under the terms of The Energy Performance of Buildings (Certificates and Inspections) (England and Wales) Regulations 2007 or the Home Report if in relation to a residential property in Scotland.
Map data ©OpenStreetMap contributors.






