
Pengelly Court, Sennen Cove, TR19 7DF

- PROPERTY TYPE
End of Terrace
- BEDROOMS
3
- BATHROOMS
1
- SIZE
958 sq ft
89 sq m
- TENUREDescribes how you own a property. There are different types of tenure - freehold, leasehold, and commonhold.Read more about tenure in our glossary page.
Freehold
Key features
- THREE BEDROOMS * CLOAKROOM
- SHOWER ROOM * SPACIOUS LOUNGE / DINING ROOM
- WELL FITTED KITCHEN * UNDERFLOOR CENTRAL HEATING TO THE GROUND FLOOR
- RADIATORS TO THE FIRST FLOOR
- AIR SOURCE HEAT PUMP * ENCLOSED COURTYARD GARDEN TO THE REAR WITH SEA VIEWS
- PARKING FOR TWO CARS TO THE FRONT * GOOD DECORATIVE ORDER THROUGHOUT
- IDEAL FAMILY OR HOLIDAY HOME * SOUGHT AFTER LOCATION
- SHORT STROLL FROM THE BEACH
- EPC = B * COUNCIL TAX BAND = C * APPROXIMATELY 89 SQUARE METRES
- EXCELLENT OPPORTUNITY * VIEWING RECOMMENDED
Description
Property additional info
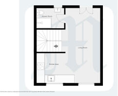
ENTRANCE HALL:
Laminate flooring, underfloor heating, built in cupboard.
CLOAKROOM:
White suite comprising wash hand basin, low level w.c., tiled floors, underfloor heating, double glazed window.
BEDROOM ONE: 14' 7" x 8' 8" (4.45m x 2.64m)
Built in double wardrobes, laminate flooring, underfloor heating, double glazed window, wall lights.
BEDROOM TWO: 10' 8" x 7' 5" (3.25m x 2.26m)
Double glazed window, laminate flooring, underfloor heating, built in cupboard.
BEDROOM THREE: 10' 9" x 8' 3" (3.28m x 2.51m)
Double glazed window with sea views over Sennen cove, laminate flooring, underfloor heating.
STAIRS FROM ENTRANCE HALL TO FIRST FLOOR
LIVING ROOM: 23' 4" x 13' 8" (7.11m x 4.17m)
Double glazed windows with views over Sennen cove and beyond, laminate flooring, high pitched ceilings, sunken spotlights, tv point, three radiators, double glazed doors to rear courtyard.
KITCHEN AREA: Approximately 9' 7" x 8' 4" (2.92m x 2.54m)
One and a half bowl stainless steel sink with cupboards below, double glazed window with lovely sea views over Sennen cove and beyond, Quartz work surfaces, range of built in wall and base units, integrated fridge, freezer, dishwasher and washing machine, built in oven with four ring hob and extractor hood.
SHOWER ROOM:
White suite comprising pedestal wash hand basin, low level w.c., glazed shower cubicle with chrome fittings, tiled flooring, underfloor heating, double glazed window, chrome towel rail.
OUTSIDE:
To the rear of the property there is an enclosed terraced garden with sea views, flower border and side access to:
PARKING:
To the front of the property for two cars.
SERVICES:
Mains water, electricity and drainage. Air source heat pump for heating.
DIRECTIONAL NOTE:
From Penzance take the A30 in a westerly direction towards Lands End. Upon reaching Sennen at the roundabout take the second exit into the cove. At the bottom of the hill continue long the seafront and just after the bus turning area turn left into Pengelly Court.
Brochures
Brochure 1- COUNCIL TAXA payment made to your local authority in order to pay for local services like schools, libraries, and refuse collection. The amount you pay depends on the value of the property.Read more about council Tax in our glossary page.
- Band: C
- PARKINGDetails of how and where vehicles can be parked, and any associated costs.Read more about parking in our glossary page.
- Yes
- GARDENA property has access to an outdoor space, which could be private or shared.
- Yes
- ACCESSIBILITYHow a property has been adapted to meet the needs of vulnerable or disabled individuals.Read more about accessibility in our glossary page.
- Ask agent
Pengelly Court, Sennen Cove, TR19 7DF
Add an important place to see how long it'd take to get there from our property listings.
__mins driving to your place
Get an instant, personalised result:
- Show sellers you’re serious
- Secure viewings faster with agents
- No impact on your credit score
Your mortgage
Notes
Staying secure when looking for property
Ensure you're up to date with our latest advice on how to avoid fraud or scams when looking for property online.
Visit our security centre to find out moreDisclaimer - Property reference G13. The information displayed about this property comprises a property advertisement. Rightmove.co.uk makes no warranty as to the accuracy or completeness of the advertisement or any linked or associated information, and Rightmove has no control over the content. This property advertisement does not constitute property particulars. The information is provided and maintained by Marshalls Estate Agents, Penzance. Please contact the selling agent or developer directly to obtain any information which may be available under the terms of The Energy Performance of Buildings (Certificates and Inspections) (England and Wales) Regulations 2007 or the Home Report if in relation to a residential property in Scotland.
*This is the average speed from the provider with the fastest broadband package available at this postcode. The average speed displayed is based on the download speeds of at least 50% of customers at peak time (8pm to 10pm). Fibre/cable services at the postcode are subject to availability and may differ between properties within a postcode. Speeds can be affected by a range of technical and environmental factors. The speed at the property may be lower than that listed above. You can check the estimated speed and confirm availability to a property prior to purchasing on the broadband provider's website. Providers may increase charges. The information is provided and maintained by Decision Technologies Limited. **This is indicative only and based on a 2-person household with multiple devices and simultaneous usage. Broadband performance is affected by multiple factors including number of occupants and devices, simultaneous usage, router range etc. For more information speak to your broadband provider.
Map data ©OpenStreetMap contributors.









