
Duck Street, Mousehole, TR19 6QW

- PROPERTY TYPE
Terraced
- BEDROOMS
3
- BATHROOMS
1
- SIZE
1,152 sq ft
107 sq m
- TENUREDescribes how you own a property. There are different types of tenure - freehold, leasehold, and commonhold.Read more about tenure in our glossary page.
Freehold
Key features
- CHARACTER COTTAGE
- CLOSE TO THE HARBOUR
- THREE DOUBLE BEDROOMS
- LOUNGE WITH WOOD BURNER
- KITCHEN/DINING ROOM
- REAR COURTYARD
- NO ONWARD CHAIN
- FIXTURES AND FITTINGS AVAILABLE BY SEPARATE NEGOTIATION
- SUCCESSFUL HOLIDAY LET
- EPC = F * COUNCIL TAX BAND = B * APPROXIMATELY 107 SQUARE METRES
Description
Property additional info
Wooden front door with glazed skylight over into the:
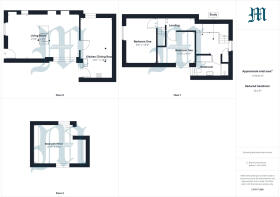
LIVING ROOM: 21' 0" x 13' 9" (6.40m x 4.19m)
Double glazed sash window to front with plantation shutters and further window to rear, two electrical wall heaters, stripped wood floor, staircase rising, open beamed ceiling, wood burner to one wall with slate hearth, exposed granite wall, two recesses. Door to:
KITCHEN/DINING ROOM: 18' 6" x 10' 1" (5.64m x 3.07m)
Double glazed window to side, electric heater, open beamed ceiling, stripped wood floor, spotlights, fitted wood base cupboards with single drainer ceramic sink with swan neck mixer tap over, wooden worktops, electric oven, induction hob, plumbing for dishwasher, space for fridge/freezer with cupboards either side, half glazed stable door and double glazed window to rear courtyard.
FIRST FLOOR:
MAIN LANDING:
Feature granite wall, stripped wood floor, inset spotlights, doors to:
BEDROOM ONE: 13' 9" x 9' 0" (4.19m x 2.74m)
Double glazed sash window to front with plantation shutters, electric heater.
BEDROOM TWO: 11' 6" x 9' 11" (3.51m x 3.02m)
Double glazed window to rear, wall mounted electric heater, recess to one wall.
Stairs from the main landing leads to:
FURTHER LANDING/STUDY AREA:
Stripped wood floor, double glazed sash to rear, exposed granite elevation, stairs rising with cupboard under housing hot water tank, high level beamed ceiling, cupboard housing plumbing for washing machine, door to:
BATHROOM:
Double glazed window to front, WC, pedestal wash hand basin, bath, mains shower cubicle, heated towel rail, vaulted ceiling.
Steps from the study lead to:
BEDROOM THREE: 17' 11" x 13' 4" (5.46m x 4.06m)
Double glazed window to side with views across the village to St Clements Island and Mount's Bay, vaulted ceiling, storage into eaves, wall mounted electric heater.
OUTSIDE:
To the rear of the property there is an enclosed courtyard with gate giving access across adjoining properties to Duck Street.
SERVICES:
Mains water, drainage and electricity.
AGENTS NOTE:
We understand from the OpenReach website that fibre broadband should be available to the property. We tested the mobile phone signal for O2 which was limited. The property is constructed of granite under a tiled slate roof. The property is situated in a conservation area.
Brochures
Brochure 1- COUNCIL TAXA payment made to your local authority in order to pay for local services like schools, libraries, and refuse collection. The amount you pay depends on the value of the property.Read more about council Tax in our glossary page.
- Band: B
- PARKINGDetails of how and where vehicles can be parked, and any associated costs.Read more about parking in our glossary page.
- Ask agent
- GARDENA property has access to an outdoor space, which could be private or shared.
- Ask agent
- ACCESSIBILITYHow a property has been adapted to meet the needs of vulnerable or disabled individuals.Read more about accessibility in our glossary page.
- Ask agent
Duck Street, Mousehole, TR19 6QW
Add an important place to see how long it'd take to get there from our property listings.
__mins driving to your place
Get an instant, personalised result:
- Show sellers you’re serious
- Secure viewings faster with agents
- No impact on your credit score
Your mortgage
Notes
Staying secure when looking for property
Ensure you're up to date with our latest advice on how to avoid fraud or scams when looking for property online.
Visit our security centre to find out moreDisclaimer - Property reference H26. The information displayed about this property comprises a property advertisement. Rightmove.co.uk makes no warranty as to the accuracy or completeness of the advertisement or any linked or associated information, and Rightmove has no control over the content. This property advertisement does not constitute property particulars. The information is provided and maintained by Marshalls Estate Agents, Penzance. Please contact the selling agent or developer directly to obtain any information which may be available under the terms of The Energy Performance of Buildings (Certificates and Inspections) (England and Wales) Regulations 2007 or the Home Report if in relation to a residential property in Scotland.
*This is the average speed from the provider with the fastest broadband package available at this postcode. The average speed displayed is based on the download speeds of at least 50% of customers at peak time (8pm to 10pm). Fibre/cable services at the postcode are subject to availability and may differ between properties within a postcode. Speeds can be affected by a range of technical and environmental factors. The speed at the property may be lower than that listed above. You can check the estimated speed and confirm availability to a property prior to purchasing on the broadband provider's website. Providers may increase charges. The information is provided and maintained by Decision Technologies Limited. **This is indicative only and based on a 2-person household with multiple devices and simultaneous usage. Broadband performance is affected by multiple factors including number of occupants and devices, simultaneous usage, router range etc. For more information speak to your broadband provider.
Map data ©OpenStreetMap contributors.








