Carsewell Steadings, Alves

- PROPERTY TYPE
Terraced Bungalow
- BEDROOMS
3
- BATHROOMS
2
- SIZE
1,377 sq ft
128 sq m
- TENUREDescribes how you own a property. There are different types of tenure - freehold, leasehold, and commonhold.Read more about tenure in our glossary page.
Freehold
Key features
- MID-TERRACED CONVERTED STEADING
- THREE DOUBLE BEDROOMS
- PRIVATE FRONT AND REAR GARDEN
- DRIVEWAY AND GARAGE
- ELECTRIC WET UNDER FLOOR HEATING
- DOUBLE GLAZING
- COUNCIL TAX BAND D
- EPC RATING D
- FREEHOLD
- VIEWING HIGHLY RECOMMENDED
Description
** REDUCED: £15,000 BELOW VALUATION **
This freehold three bedroom converted steading forms part of a sympathetic courtyard development by respected local builders Tulloch of Cummingston and is situated in the village of Alves, just a few miles from Forres, Elgin and local amenities.
Renovated in 2008 and with a new replacement slated roof, the property has had a full internal fit-out with new insulated floor, walls and ceiling, together with double glazed upvc windows to building regulation standards. This is, in effect, a new-build home with all the advantages this offers, within the character of a solid stone walled outer shell.
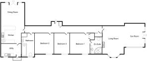
In good order throughout, the accommodation comprises: Hallway with storage cupboards, open plan living room and sun room, three double bedrooms, one with en suite shower room, a family bathroom, open plan kitchen and dining room with feature skylights and patio doors to the garden, and a separate utility room. The property benefits from double glazing and under floor heating provided by an electric wet heating system.
There are private garden grounds to the front and rear of the property, while a shared driveway leads to the detached single garage and private parking area.
This would make an ideal family home and we highly recommend a viewing.
- Utility 2.89m x 1.88m
- Dining Room 3.37m x 3.61m
- Kitchen 3.79m x 2.87m
- Bathroom 3.63m x 1.65m
- Bedroom 1 3.22m x 3.33m
- En Suite 1.59m x 2.56m
- Bedroom 2 3.1m x 3.24m
- Bedroom 3 2.57m x 3.24m
- Lounge 3.87m x 6.0m
- Sun Room 3.92m x 3.5m
- Garage 2.7m x 5.58m
Brochures
Brochure 1- COUNCIL TAXA payment made to your local authority in order to pay for local services like schools, libraries, and refuse collection. The amount you pay depends on the value of the property.Read more about council Tax in our glossary page.
- Ask agent
- PARKINGDetails of how and where vehicles can be parked, and any associated costs.Read more about parking in our glossary page.
- Yes
- GARDENA property has access to an outdoor space, which could be private or shared.
- Yes
- ACCESSIBILITYHow a property has been adapted to meet the needs of vulnerable or disabled individuals.Read more about accessibility in our glossary page.
- Ask agent
Carsewell Steadings, Alves
Add an important place to see how long it'd take to get there from our property listings.
__mins driving to your place
Get an instant, personalised result:
- Show sellers you’re serious
- Secure viewings faster with agents
- No impact on your credit score


Your mortgage
Notes
Staying secure when looking for property
Ensure you're up to date with our latest advice on how to avoid fraud or scams when looking for property online.
Visit our security centre to find out moreDisclaimer - Property reference 1307. The information displayed about this property comprises a property advertisement. Rightmove.co.uk makes no warranty as to the accuracy or completeness of the advertisement or any linked or associated information, and Rightmove has no control over the content. This property advertisement does not constitute property particulars. The information is provided and maintained by Cluny Estates Agents & Property Management, Elgin. Please contact the selling agent or developer directly to obtain any information which may be available under the terms of The Energy Performance of Buildings (Certificates and Inspections) (England and Wales) Regulations 2007 or the Home Report if in relation to a residential property in Scotland.
*This is the average speed from the provider with the fastest broadband package available at this postcode. The average speed displayed is based on the download speeds of at least 50% of customers at peak time (8pm to 10pm). Fibre/cable services at the postcode are subject to availability and may differ between properties within a postcode. Speeds can be affected by a range of technical and environmental factors. The speed at the property may be lower than that listed above. You can check the estimated speed and confirm availability to a property prior to purchasing on the broadband provider's website. Providers may increase charges. The information is provided and maintained by Decision Technologies Limited. **This is indicative only and based on a 2-person household with multiple devices and simultaneous usage. Broadband performance is affected by multiple factors including number of occupants and devices, simultaneous usage, router range etc. For more information speak to your broadband provider.
Map data ©OpenStreetMap contributors.




