
Barns near Wellow
- PROPERTY TYPE
Land
- SIZE
28,314 sq ft
2,630 sq m
Key features
- Two barns with planning permission for conversion
- Quiet rural position
- Close to Wellow and Bath
Description
A further modern barn with planning permission to use as stables/ancillary use.
Extensive grounds extending to 0.65 acres.
Freehold.
Description.
The sale of this property provides a rare opportunity to acquire a good-sized agricultural building with planning permission to convert into an impressive 3 bedroom dwelling along with the opportunity to convert a secondary barn into stables. Approached from Norton Lane just to the south-east of Wellow, there is scope to create an impressive and secluded home in a rural position.
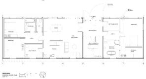
The accommodation provided will extend to 167 sq.m. (1798 sq.ft.) and will comprise:
Kitchen/Dining Room
Sitting Room
Utility Room
Cloak room
Study
Three Bedrooms
Three Bathrooms
The second agricultural building with planning permission for stables is 120 sqm (1291 sqft)
About the Area.
Wellow is a delightful and quiet village situated in the North Somerset countryside. Whilst being away from main roads, there is good access to the A36 which leads into Bath. The centre of Bath is only 5 miles away and there is an excellent network of lanes, footpaths and cycleways in the locality. The village itself has a lovely country pub, (Fox and Badger) open 6 days a week, with live music events. There is also a livery yard on the north side of the village (Wellow Horse Livery Centre). In addition, there is a moderately sized village shop, although for larger needs there are supermarkets in Bath and near-by Midsomer Norton.
Planning.
Planning permission (ref 24/01919/ADCOU) was granted on 20th May 2024 through the prior approval request for change of use from Agricultural Building to 1no. Dwelling (C3)
Services.
Electricity services are believed to be available in the locality. There will be a requirement for a borehole water supply.
Viewings.
Inspection by appointment with the selling agents, Killens Tel: or
Local Authority.
Bath & North East Somerset Council
Rights of Way, Easements etc.
The property is not affected by footpaths or by any other similar matters. The property is sold however subject to all rights including rights of way whether public or private, light, support, drainage, water and electricity supplies and other rights, covenants, agreements and all existing and proposed wayleaves, masts, pylons, stays, cables, drains and water, gas or other pipes whether referred to in these particulars or not.
Directions.
From the centre of Wellow continue onto Mill Hill then head west on Norton Lane towards Baggridge Hill. Continue up Norton Lane for half mile and the entrance will be found on the right.
Nearest Postcode – BA2 8QR
What3words - ///tops.positives.developed
VAT - The purchase price is not subject to VAT.
Brochures
ParticularsBarns near Wellow
NEAREST STATIONS
Distances are straight line measurements from the centre of the postcode- Freshford Station3.1 miles
- Avoncliff Station3.9 miles
- Bath Spa Station4.0 miles
Notes
Disclaimer - Property reference AUC240019. The information displayed about this property comprises a property advertisement. Rightmove.co.uk makes no warranty as to the accuracy or completeness of the advertisement or any linked or associated information, and Rightmove has no control over the content. This property advertisement does not constitute property particulars. The information is provided and maintained by Killens, Wells. Please contact the selling agent or developer directly to obtain any information which may be available under the terms of The Energy Performance of Buildings (Certificates and Inspections) (England and Wales) Regulations 2007 or the Home Report if in relation to a residential property in Scotland.
Map data ©OpenStreetMap contributors.







