
3a Boulcott Street, London

- PROPERTY TYPE
Flat
- BEDROOMS
1
- BATHROOMS
1
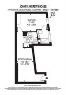
- SIZE
Ask agent
Key features
- One Bedroom
- First Floor
- Secure Communal Entrance
- Modern Fittings throughout
- Approximately 114 Lease
- Limehouse DLR
- Low annual service charge
- Council Tax Band C
Description
The comfortable bedroom leads to a stylish en-suite wet room with underfloor heating, built-in storage and heated towel rail.
The apartment is fully double glazed, has gas central heating and benefits from a low annual service charge.
The apartment is ideal for first time buyers looking for an easy and short commute into the City or Canary Wharf, both can be reached in less than 10 minutes on the DLR.
Less than a minute walk away you will find a Sainsbury’s Local and other local favourites such as The Baklava Company, The Craft Beer Co and The Allotment Kitchen.
Nearby Location
Spitalfields Market and Shoreditch is also within walking distance.
Transport Information
- 0.1 miles to Limehouse DLR and C2C rail services
- Limehouse DLR runs direct to Bank (5 minutes), Canary Wharf (3 minutes) and London City Airport (15 minutes).
- C2C trains go direct to Fenchurch St (5 minutes)
- Nearest bus stop is less than one minute away with buses to Aldgate, Trafalgar Sq and Old Street.
What the vendor says: "I bought the flat in 2014 and never intended to keep it so long, but it has been such a great home and investment for me that I’ve held onto it. The location is so convenient, just a few minutes walk to the DLR station and you can get to most central locations within 10-20 minutes. There is also a Sainsbury’s right on the doorstep. During periods of working abroad or travelling it’s also been very easy to rent the flat and at a profit. It would make a great first-time home or investment."
Disclaimer
Felicity J Lord Estate Agents also offer a professional, ARLA accredited Lettings and Management Service. If you are considering renting your property in order to purchase, are looking at buy to let or would like a free review of your current portfolio then please call the Lettings Branch Manager on the number shown above.
Felicity J Lord Estate Agents is the seller's agent for this property. Your conveyancer is legally responsible for ensuring any purchase agreement fully protects your position. We make detailed enquiries of the seller to ensure the information provided is as accurate as possible. Please inform us if you become aware of any information being inaccurate.
Brochures
Material InformationBrochure- COUNCIL TAXA payment made to your local authority in order to pay for local services like schools, libraries, and refuse collection. The amount you pay depends on the value of the property.Read more about council Tax in our glossary page.
- Ask agent
- PARKINGDetails of how and where vehicles can be parked, and any associated costs.Read more about parking in our glossary page.
- Ask agent
- GARDENA property has access to an outdoor space, which could be private or shared.
- Ask agent
- ACCESSIBILITYHow a property has been adapted to meet the needs of vulnerable or disabled individuals.Read more about accessibility in our glossary page.
- Ask agent
3a Boulcott Street, London
Add an important place to see how long it'd take to get there from our property listings.
__mins driving to your place
Get an instant, personalised result:
- Show sellers you’re serious
- Secure viewings faster with agents
- No impact on your credit score
Affordability
Notes
Staying secure when looking for property
Ensure you're up to date with our latest advice on how to avoid fraud or scams when looking for property online.
Visit our security centre to find out moreDisclaimer - Property reference 0277_FJL027708115. The information displayed about this property comprises a property advertisement. Rightmove.co.uk makes no warranty as to the accuracy or completeness of the advertisement or any linked or associated information, and Rightmove has no control over the content. This property advertisement does not constitute property particulars. The information is provided and maintained by Felicity J Lord, Wapping. Please contact the selling agent or developer directly to obtain any information which may be available under the terms of The Energy Performance of Buildings (Certificates and Inspections) (England and Wales) Regulations 2007 or the Home Report if in relation to a residential property in Scotland.
*This is the average speed from the provider with the fastest broadband package available at this postcode. The average speed displayed is based on the download speeds of at least 50% of customers at peak time (8pm to 10pm). Fibre/cable services at the postcode are subject to availability and may differ between properties within a postcode. Speeds can be affected by a range of technical and environmental factors. The speed at the property may be lower than that listed above. You can check the estimated speed and confirm availability to a property prior to purchasing on the broadband provider's website. Providers may increase charges. The information is provided and maintained by Decision Technologies Limited. **This is indicative only and based on a 2-person household with multiple devices and simultaneous usage. Broadband performance is affected by multiple factors including number of occupants and devices, simultaneous usage, router range etc. For more information speak to your broadband provider.
Map data ©OpenStreetMap contributors.






