
Mepal Road, Sutton

- PROPERTY TYPE
Detached
- BEDROOMS
4
- BATHROOMS
2
- SIZE
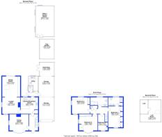
1,561 sq ft
145 sq m
- TENUREDescribes how you own a property. There are different types of tenure - freehold, leasehold, and commonhold.Read more about tenure in our glossary page.
Freehold
Key features
- Detached Family Home
- Two Reception Rooms
- Kitchen/Breakfast Room
- Four Bedrooms (One with En-Suite)
- Family Bathroom
- Off Road Parking & Garage
- Games Room/Studio/Office
- Enclosed Rear Garden
- Village Location
Description
SUTTON
is a large village situated on high ground about 6 miles west of Ely and only about 17 miles from Cambridge. There is good access to both cities. Sutton has local shopping facilities, a GP Surgery, Pharmacy and a primary school.
ENTRANCE HALL
with door to front aspect, staircase rising to first floor with under stairs storage cupboard, luxury vinyl tile flooring.
FRONT FAMILY ROOM
4.25 m x 3.59 m (13'11" x 11'9")
with feature open fireplace, bay window to front aspect with fitted shutters, radiator.
LOUNGE AREA
3.95 m x 3.63 m (13'0" x 11'11")
Dual aspect with double glazed windows to side and front, fireplace fitted with multi-fuel stove, radiator, opening to:-
DINING AREA
4.52 m x 3.95 m (14'10" x 13'0")
with electric Velux roof light and double glazed sliding patio doors to rear garden. Fitted with handmade low level storage cabinets and display area, built-in shelving, two radiators and luxury vinyl tile flooring.
KITCHEN/BREAKFAST ROOM
3.85 m x 3.63 m (12'8" x 11'11")
Recently updated to include Belfast sink, fitted Bosch self cleaning oven, Bosch gas hob with extractor hood above. Fitted with a range of matching units and quartz work surfaces including base units, wall mounted units and drawers. Bosch integrated appliances include fridge/freezer and dishwasher. Extended breakfast bar, radiator, pantry, double glazed window to rear aspect and Karndean luxury vinyl tile flooring.
REAR LOBBY
with door to rear garden, door to WC, door to utility room and door to garage.
CLOAKROOM
with double glazed window to side aspect and high level WC.
UTILITY ROOM
with fitted cupboards and inset sink unit, plumbing for washing machine, Worcester Bosch gas boiler supplying the central heating system and tiled flooring.
FIRST FLOOR LANDING
4.79 m x 2.72 m (15'9" x 8'11")
Access to loft which is boarded, power and light connected and pull-down ladder measuring 15'9" x 8'11" (4.79m x 2.72m). Double door airing cupboard.
BEDROOM ONE
4.68 m x 3.23 m (15'4" x 10'7")
with double glazed window to front aspect, four fitted double wardrobes to one wall, dressing table, radiator.
EN-SUITE SHOWER ROOM
4.10 m x 3.59 m (13'5" x 11'9")
Fitted with a tiled shower cubicle, two hand basins, low level WC, cupboard with slatted shelving, wall mounted electric Dimplex heater, tiled floor and heated towel rail.
BEDROOM TWO
4.10 m x 3.59 m (13'5" x 11'9")
with bay window to front aspect, fitted wardrobe cupboard, shelved cupboard, radiator.
BEDROOM THREE
3.95 m x 3.63 m (13'0" x 11'11")
Triple aspect with double glazed windows to front, side and rear, shelved storage cupboard, radiator.
BEDROOM FOUR
3.59 m x 2.13 m (11'9" x 7'0")
with double glazed window to front aspect, two fitted cupboards (one shelved), radiator.
FAMILY BATHROOM
Recently updated to include a three piece suite comprising panelled bath, unit, wash hand basin, low level WC, heated towel rail, LED mirror, tiled floor, double glazed window to rear aspect.
EXTERIOR
To the front of the property there is an extensive parking and turning area, lawned garden and walled front boundary. There is an integral garage / workshops fitted with metal up and over door, being 44' (13.4m) in length with power and light connected. Double doors to the rear of the garage allow easy access to the rear garden.
To the rear of the garage there are timber built dog kennels/additional storage units. Beyond this an outbuilding currently in use as a games room measuring approximately 21' 11"x 13' 4"(6.66m x 4.07m). The outbuilding is built to a good specification with windows, doors, laid with vinyl flooring, power and light connected and radiator.
The rear garden has a terrace and is predominantly lawned with a wildlife pond and fully enclosed with mature apple and plum trees.
Brochures
Sales Details - Mepal Road Sutton Ely CB6 2PZ- COUNCIL TAXA payment made to your local authority in order to pay for local services like schools, libraries, and refuse collection. The amount you pay depends on the value of the property.Read more about council Tax in our glossary page.
- Band: D
- PARKINGDetails of how and where vehicles can be parked, and any associated costs.Read more about parking in our glossary page.
- Garage
- GARDENA property has access to an outdoor space, which could be private or shared.
- Yes
- ACCESSIBILITYHow a property has been adapted to meet the needs of vulnerable or disabled individuals.Read more about accessibility in our glossary page.
- Ask agent
Mepal Road, Sutton
Add an important place to see how long it'd take to get there from our property listings.
__mins driving to your place
Get an instant, personalised result:
- Show sellers you’re serious
- Secure viewings faster with agents
- No impact on your credit score
Your mortgage
Notes
Staying secure when looking for property
Ensure you're up to date with our latest advice on how to avoid fraud or scams when looking for property online.
Visit our security centre to find out moreDisclaimer - Property reference PEO-7131. The information displayed about this property comprises a property advertisement. Rightmove.co.uk makes no warranty as to the accuracy or completeness of the advertisement or any linked or associated information, and Rightmove has no control over the content. This property advertisement does not constitute property particulars. The information is provided and maintained by Pocock & Shaw, Ely. Please contact the selling agent or developer directly to obtain any information which may be available under the terms of The Energy Performance of Buildings (Certificates and Inspections) (England and Wales) Regulations 2007 or the Home Report if in relation to a residential property in Scotland.
*This is the average speed from the provider with the fastest broadband package available at this postcode. The average speed displayed is based on the download speeds of at least 50% of customers at peak time (8pm to 10pm). Fibre/cable services at the postcode are subject to availability and may differ between properties within a postcode. Speeds can be affected by a range of technical and environmental factors. The speed at the property may be lower than that listed above. You can check the estimated speed and confirm availability to a property prior to purchasing on the broadband provider's website. Providers may increase charges. The information is provided and maintained by Decision Technologies Limited. **This is indicative only and based on a 2-person household with multiple devices and simultaneous usage. Broadband performance is affected by multiple factors including number of occupants and devices, simultaneous usage, router range etc. For more information speak to your broadband provider.
Map data ©OpenStreetMap contributors.






