1 Hankelow Mill, Mill Lane, Hankelow

- PROPERTY TYPE
Semi-Detached
- BEDROOMS
3
- BATHROOMS
3
- SIZE
Ask agent
- TENUREDescribes how you own a property. There are different types of tenure - freehold, leasehold, and commonhold.Read more about tenure in our glossary page.
Freehold
Description
A SPECTACLULAR CONVERSION OF A GRADE II LISTED EARLY 19TH CENTURY WATER POWERED CORN MILL IN A MAGICAL RURAL LOCATION WITH A 500 FOOT LONG RIVERSIDE GARDEN, FORMAL GAZEBO GARDEN AND GROUNDS EXTENDING IN ALL TO ABOUT 3.25 ACRES, 1.5 MILES FROM AUDLEM VILLAGE CENTRE.
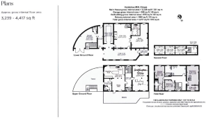
Summary - Terrace Hall, Cloakroom, Living Room, Kitchen/Breakfast/Dining Room, Hallway, Balcony, Principle Bedroom with Ensuite Shower Room, Bedroom No. 2 with Ensuite Dressing Room, Bedroom No. 3, Bathroom, Four Attic Rooms, Lower Ground Floor comprising Mill Room, Study, Utility Room, Waterwheel, Cupboard Balcony, Oil Central Heating, Double Glazed Windows, Workshop, Garage/Workshop, Car Parking and Turning Area, Garden and Grounds. About 3.50 Acres.
Description - This semi detached early 19th century Mill conversion is constructed of brick in Flemish Bond under a tiled roof (re-roofed in 2021) and approached over a block paved drive. This has been very much a passion project, with the owner of Hankelow Mill having dedicated himself, over the last 28 years, to the mission of helping this property reach its full potential. There has been substantial and continual capital investment into every aspect of the property with painstaking attention to detail. A particular feature of the accommodation being the kitchen/breakfast/dining room, spanning the full depth of the Mill, with a superb range of bespoke Christians furniture. Five working sluice gates have been replaced and the waterwheel rebuilt.
The location is ideal for those who want to embrace the best benefits of rural life without comprising on accessibility. The riverside location, far reaching views, walks connecting to the Shropshire union canal and the wonderful grounds give Hankelow Mill the sense of rural delight.
Location & Amenities - Mill Lane is a private lane leading to Monks Hall Farm and Over The Water Farm beyond. Hankelow village centre is one mile with village green and duck pond, chapel and recently refurbished White Lion Pub/Restaurant. Audlem village centre is 1.5 miles and is an attractive country village providing a number of local shops including chemist, butchers, local co-operative store and newsagent, health centre, modern primary school, café, restaurant, three public houses and wide variety of community activities.
Nantwich has a choice of shopping facilities, social amenities and sporting facilities. There is a primary school in Audlem and the property lies in the catchment area of Brine Leas Secondary School/BL6 Sixth Form. Private schooling in the area includes Newcastle High School, The Grange at Hartford, The Kings and Queens in Chester and Ellesmere College. There are numerous sports facilities in the area including tennis, bowling, cricket, football, running and cycling clubs in Audlem. There are two 18 hole golf courses at nearby Whitchurch.
Approximate Distances - Nantwich 6 miles
Crewe (intercity rail network - London Euston 90 minutes, Manchester 40 minutes) 10 miles
M6 Motorway (junction 16) 12 miles
The Potteries 15 miles
Chester 24 miles
Manchester Airport 37 miles
Directions - To find the property from Nantwich, take the A529 through Hankelow. The property is about half a mile from the White Lion public house, turn right into Mill Lane (not named due to it being a private road), before Corbrook Court Nursing home, proceed for half a mile and 2 Hankelow Mill is located on the right hand side, before the river.
Accommodation - With approximate measurements comprises:
Terrace Hall - 3.73m x 2.31m (12'3" x 7'7") - Stone floor, oak entrance door, two double wall lights, radiator.
Cloakroom - Personal hand basin and W/C in oak surround.
Living Room - 7.57m x 4.75m (24'10" x 15'7") - Stone fireplace with slate hearth and Jottul wood burning stove, barrel ceiling, three double glazed picture windows and French window to balcony, six wall lights, walnut effect flooring, two period style radiators.
Kitchen/Dining/Breakfast Room - 7.54m x 6.48m (24'9" x 21'3") - A superb range of bespoke fitted furniture by Christians comprising floor standing cupboard and drawer units with Quartz worktops, wall cupboards, dresser unit with granite worktop, island unit with Quartz worktop, wine rack, integrated double Belfast sink with mixer tap and hot water tap, pantry cupboard, full height integrated refrigerator and freezer, Miele oven grill and induction hob with extractor hood above, barrelled ceiling, four double glazed windows, stone floor with underfloor heating, four double wall lights, exposed mill workings.
Hallway - 7.42m x 1.98m (24'4" x 6'6") - Barrel ceiling, two double glazed windows, wall light, radiator.
Cast Iron Staircase From Hallway To First Floor La - Exposed beamed ceiling, radiator.
Principle Bedroom - 7.49m x 3.05m (24'7" x 10'0") - Three double glazed windows, beamed ceiling, three double wall lights, fitted furniture comprising two double wardrobes, two chest of drawers and dressing table, radiator.
Ensuite Shower Room - Travertine tiled walls and floor, Travertine pedestal hand basin, low flush W/C, Travertine tiled shower cubicle with Lefroy Brookes rain head and hand held shower, double glazed window.
Bedroom No. 2 - 5.87m x 3.58m (19'3" x 11'9") - Pained beamed ceiling, radiator.
Bathroom - 6.60m x 3.20m (21'8" x 10'6") - White suite comprising pedestal hand basin, low flush W/C, bidet and Jacuzzi bath, Jacuzzi shower with seat injects, beamed ceiling, stone floor, radiator.
Bedroom No. 3 - 5.87m x 3.58m (19'3" x 11'9") - Painted beamed ceiling, mill workings, radiator.
Wrought Iron Staircase To Second Floor -
Dressing Room - 3.71m x 1.57m (12'2" x 5'2") - Pained beamed ceiling, radiator.
Second Floor Comprises Four Attic Rooms - measuring 3.07m x 2.57m 3.28m x 2.57m and 3.25 - With beamed ceiling, eaves storage and lighting. No windows.
Lower Ground Floor -
Mill Room - 7.29m x 5.26m (23'11" x 17'3") - Mill workings, stone floor, three windows, barrel ceiling.
Studio - 7.39m x 5.05m (24'3" x 16'7") - Heatrae Sadia mega flow cylinder, Warmflow oil fired central heating boiler, barrel ceiling, double glazed window, tiled floor.
Utility Room - 3.58m x 2.59m (11'9" x 8'6") - Double stainless steel sink in granite surround, wall cupboards, plumbing for washing machine, broom cupboard, stone floor, water wheel 24'4" x 9'3" working water wheel, covered balcony/garden room 37'4" x 10'1", stone floor.
Outside - Attached store 22'1" x 5'4", GARAGE/WORKSHOP 17'2" x 16'4" double doors, W/C. Two Victorian street lamps. Blocked paved car parking and turning area.
Gardens & Grounds - Formal garden to the rear comprising raised herbaceous and shrub borders. A block paved path leads to a wonderful area with the mill pond to the East and the River Weaver to the West. The waterfront gardens extend to the front and rear. To the front, and the Southerly aspect, a glass gazebo sits within landscaped box hedging, providing a wonderful sunny spot beside the river. To the rear, the gardens stretch is approximately 50 yards as a long strip of land running between the mill pond and the river, cumulating in an open area with a greenhouse (20'6" x 8'6") with electricity and water supply, plus raised beds and potting sheds. In total the gardens and grounds extend to about 3.50 acres.
Services - Mains water and electricity. Klargester treatment plant.
N.B. Tests have not been made of electrical, water, drainage and heating systems and associated appliances, nor confirmation obtained from the statutory bodies of the presence of these services. The information given should therefore be verified prior to a legal commitment to purchase.
Tenure - Freehold.
Council Tax - Band G.
Viewings - Viewings by appointment with Baker, Wynne and Wilson.
Telephone:
Brochures
1 Hankelow Mill, Mill Lane, HankelowBrochure- COUNCIL TAXA payment made to your local authority in order to pay for local services like schools, libraries, and refuse collection. The amount you pay depends on the value of the property.Read more about council Tax in our glossary page.
- Band: G
- PARKINGDetails of how and where vehicles can be parked, and any associated costs.Read more about parking in our glossary page.
- Yes
- GARDENA property has access to an outdoor space, which could be private or shared.
- Yes
- ACCESSIBILITYHow a property has been adapted to meet the needs of vulnerable or disabled individuals.Read more about accessibility in our glossary page.
- Ask agent
Energy performance certificate - ask agent
1 Hankelow Mill, Mill Lane, Hankelow
Add an important place to see how long it'd take to get there from our property listings.
__mins driving to your place
Get an instant, personalised result:
- Show sellers you’re serious
- Secure viewings faster with agents
- No impact on your credit score



Your mortgage
Notes
Staying secure when looking for property
Ensure you're up to date with our latest advice on how to avoid fraud or scams when looking for property online.
Visit our security centre to find out moreDisclaimer - Property reference 33785754. The information displayed about this property comprises a property advertisement. Rightmove.co.uk makes no warranty as to the accuracy or completeness of the advertisement or any linked or associated information, and Rightmove has no control over the content. This property advertisement does not constitute property particulars. The information is provided and maintained by Baker Wynne & Wilson, Nantwich. Please contact the selling agent or developer directly to obtain any information which may be available under the terms of The Energy Performance of Buildings (Certificates and Inspections) (England and Wales) Regulations 2007 or the Home Report if in relation to a residential property in Scotland.
*This is the average speed from the provider with the fastest broadband package available at this postcode. The average speed displayed is based on the download speeds of at least 50% of customers at peak time (8pm to 10pm). Fibre/cable services at the postcode are subject to availability and may differ between properties within a postcode. Speeds can be affected by a range of technical and environmental factors. The speed at the property may be lower than that listed above. You can check the estimated speed and confirm availability to a property prior to purchasing on the broadband provider's website. Providers may increase charges. The information is provided and maintained by Decision Technologies Limited. **This is indicative only and based on a 2-person household with multiple devices and simultaneous usage. Broadband performance is affected by multiple factors including number of occupants and devices, simultaneous usage, router range etc. For more information speak to your broadband provider.
Map data ©OpenStreetMap contributors.




