
Meadow Way, Petworth, GU28

- PROPERTY TYPE
End of Terrace
- BEDROOMS
3
- BATHROOMS
1
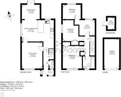
- SIZE
1,136 sq ft
106 sq m
- TENUREDescribes how you own a property. There are different types of tenure - freehold, leasehold, and commonhold.Read more about tenure in our glossary page.
Freehold
Key features
- Beautiful Views Of The South Downs
- Walking Distance to Petworth Town
- Single Garage
- Kitchen / Dining / Sitting Room
- Versatile and Spacious Accommodation
- Cosy Sitting Room with Wood Stove
- Well Presented Throughout
- Ideal Family Home / Downsize
- Three Bedrooms & A Study
Description
Situated on the southern fringe of Petworth, within easy walking distance of local shops, 14 Meadow Way is a well-presented three-bedroom home offering comfortable living in a desirable location, The South Downs National Park. Originally built in the 1970s, the property features half tile-hung elevations of brick beneath a pan tiled roof and has been thoughtfully extended to the rear over two storeys. Modern improvements include UPVC double-glazed windows and doors, as well as gas-fired central heating with a new boiler being installed in 2022.
Upon entering, an enclosed porch leads to a welcoming hallway, complete with a cloakroom and useful under-stairs storage. The sitting room is generously proportioned and enjoys a pleasant outlook over the front garden, complemented by a log-burning stove. The dining room has been extended to incorporate a versatile family room/snug, with glazed doors opening onto the rear garden. The modern kitchen is well-equipped with ample storage, integrated appliances, a breakfast bar island, and a dining area.
Upstairs, the property offers a study and three bedrooms, two of which benefit from distant rural views and built-in wardrobes. The family bathroom comprises a white suite with a WC, washbasin, and bath with an digital power shower. The landing provides additional storage, including an airing cupboard and loft access.
Externally, the front garden is attractively landscaped with mature shrubs. The rear garden features a paved terrace, a stone retaining wall, and steps leading to a lawn bordered by shrubs. A pathway provides access to the garden store and a rear gate leading to a single garage.
EPC Rating: C
Sitting Room (3.46m x 4.39m)
Bedroom 2 (3.56m x 3.56m)
Bedroom 3 (2.44m x 3.02m)
Study (2.7m x 3.41m)
Parking - Garage
4.97m x 2.53m
Brochures
Property Brochure- COUNCIL TAXA payment made to your local authority in order to pay for local services like schools, libraries, and refuse collection. The amount you pay depends on the value of the property.Read more about council Tax in our glossary page.
- Band: D
- PARKINGDetails of how and where vehicles can be parked, and any associated costs.Read more about parking in our glossary page.
- Garage
- GARDENA property has access to an outdoor space, which could be private or shared.
- Private garden
- ACCESSIBILITYHow a property has been adapted to meet the needs of vulnerable or disabled individuals.Read more about accessibility in our glossary page.
- Ask agent
Meadow Way, Petworth, GU28
Add an important place to see how long it'd take to get there from our property listings.
__mins driving to your place
Get an instant, personalised result:
- Show sellers you’re serious
- Secure viewings faster with agents
- No impact on your credit score
Your mortgage
Notes
Staying secure when looking for property
Ensure you're up to date with our latest advice on how to avoid fraud or scams when looking for property online.
Visit our security centre to find out moreDisclaimer - Property reference bba260c4-05cb-47e8-bb8d-86bbf8c29d64. The information displayed about this property comprises a property advertisement. Rightmove.co.uk makes no warranty as to the accuracy or completeness of the advertisement or any linked or associated information, and Rightmove has no control over the content. This property advertisement does not constitute property particulars. The information is provided and maintained by Henry Adams, Midhurst. Please contact the selling agent or developer directly to obtain any information which may be available under the terms of The Energy Performance of Buildings (Certificates and Inspections) (England and Wales) Regulations 2007 or the Home Report if in relation to a residential property in Scotland.
*This is the average speed from the provider with the fastest broadband package available at this postcode. The average speed displayed is based on the download speeds of at least 50% of customers at peak time (8pm to 10pm). Fibre/cable services at the postcode are subject to availability and may differ between properties within a postcode. Speeds can be affected by a range of technical and environmental factors. The speed at the property may be lower than that listed above. You can check the estimated speed and confirm availability to a property prior to purchasing on the broadband provider's website. Providers may increase charges. The information is provided and maintained by Decision Technologies Limited. **This is indicative only and based on a 2-person household with multiple devices and simultaneous usage. Broadband performance is affected by multiple factors including number of occupants and devices, simultaneous usage, router range etc. For more information speak to your broadband provider.
Map data ©OpenStreetMap contributors.








