
Moat Lane, Pulborough, RH20

- PROPERTY TYPE
Detached
- BEDROOMS
4
- BATHROOMS
2
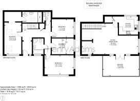
- SIZE
1,419 sq ft
132 sq m
- TENUREDescribes how you own a property. There are different types of tenure - freehold, leasehold, and commonhold.Read more about tenure in our glossary page.
Freehold
Key features
- A unique upside down house with first floor sitting room to appreciate the stunning views over the Pulborough Wildbrooks and towards the South Downs
- Main bedroom with en-suite shower room and dressing area with fitted wardrobes
- Three further double bedrooms, family bathroom and separate cloakroom
- Sitting / dining room with access onto roof terrace and lovely outlook
- Kitchen with space for appliances and utility cupboard with plumbing for washing machine
- Parking for two vehicles
- Garden with ornamental pond
- Lovely roof terrace ideal for entertaining
- Walking distance to the station, school and shops
Description
Located in the idyllic surroundings of Pulborough with spectacular views stretching over the Pulborough Wildbrooks and towards the South Downs. This unique 4 bedroom detached house offers a truly distinctive living experience. Designed in an upside-down style, the first floor boasts a spacious sitting room that provides a perfect vantage point to admire the views. The main bedroom features an en-suite shower room and dressing area with fitted wardrobes, while three additional double bedrooms, a family bathroom and additional cloakroom ensure ample accommodation space. The sitting/dining room opens onto a delightful roof terrace, offering a charming outlook ideal for relaxing or entertaining. The kitchen, complete with space for appliances, is a functional and bright inviting space. Parking is available for two vehicles, adding convenience for residents. This residence is within walking distance to the station, school, and shops, providing accessibility and convenience for daily life.
The outdoor space of this property is a sanctuary in itself, offering a tranquil escape from the every-day hustle and bustle. The garden features an ornamental pond, adding a touch of serenity to the surroundings, there is a useful garden shed and outside power sockets. A lovely roof terrace complements the property, providing an additional outdoor space perfect for hosting gatherings or simply enjoying the fresh air. With its convenient location and unique design, this residence presents an opportunity to savour a sophisticated lifestyle amidst the natural beauty of Pulborough.
EPC Rating: D
Brochures
Property Brochure- COUNCIL TAXA payment made to your local authority in order to pay for local services like schools, libraries, and refuse collection. The amount you pay depends on the value of the property.Read more about council Tax in our glossary page.
- Band: F
- PARKINGDetails of how and where vehicles can be parked, and any associated costs.Read more about parking in our glossary page.
- Yes
- GARDENA property has access to an outdoor space, which could be private or shared.
- Private garden
- ACCESSIBILITYHow a property has been adapted to meet the needs of vulnerable or disabled individuals.Read more about accessibility in our glossary page.
- Ask agent
Moat Lane, Pulborough, RH20
Add an important place to see how long it'd take to get there from our property listings.
__mins driving to your place
Get an instant, personalised result:
- Show sellers you’re serious
- Secure viewings faster with agents
- No impact on your credit score


Your mortgage
Notes
Staying secure when looking for property
Ensure you're up to date with our latest advice on how to avoid fraud or scams when looking for property online.
Visit our security centre to find out moreDisclaimer - Property reference 26e6197b-fe5a-478f-85fe-670a54eff7e4. The information displayed about this property comprises a property advertisement. Rightmove.co.uk makes no warranty as to the accuracy or completeness of the advertisement or any linked or associated information, and Rightmove has no control over the content. This property advertisement does not constitute property particulars. The information is provided and maintained by Henry Adams, Storrington and Billinghurst. Please contact the selling agent or developer directly to obtain any information which may be available under the terms of The Energy Performance of Buildings (Certificates and Inspections) (England and Wales) Regulations 2007 or the Home Report if in relation to a residential property in Scotland.
*This is the average speed from the provider with the fastest broadband package available at this postcode. The average speed displayed is based on the download speeds of at least 50% of customers at peak time (8pm to 10pm). Fibre/cable services at the postcode are subject to availability and may differ between properties within a postcode. Speeds can be affected by a range of technical and environmental factors. The speed at the property may be lower than that listed above. You can check the estimated speed and confirm availability to a property prior to purchasing on the broadband provider's website. Providers may increase charges. The information is provided and maintained by Decision Technologies Limited. **This is indicative only and based on a 2-person household with multiple devices and simultaneous usage. Broadband performance is affected by multiple factors including number of occupants and devices, simultaneous usage, router range etc. For more information speak to your broadband provider.
Map data ©OpenStreetMap contributors.





