
East Pallant, Chichester, PO19

- PROPERTY TYPE
Terraced
- BEDROOMS
2
- BATHROOMS
1
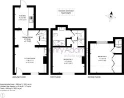
- SIZE
597 sq ft
56 sq m
- TENUREDescribes how you own a property. There are different types of tenure - freehold, leasehold, and commonhold.Read more about tenure in our glossary page.
Freehold
Key features
- Open plan sitting room/dining room
- Open fireplace
- Recently refitted kitchen
- Two bedrooms
- Secluded courtyard garden
- On street permit parking
- No onward chain
Description
A delightful period cottage situated in the heart of the city centre, about 100 metres from East Street shopping precient.
Situated in the heart of the city centre this Grade II listed cottage, is steeped in charm and character. The property has undergone considerable yet sympathetic updating in recent years and is beautifully presented throughout.
Arranged over three floors the accommodation includes an open plan sitting room/dining room with an open fireplace in the sitting room area. The classic shaker style kitchen includes an integrated double oven, gas hob and an integrated washing machine. The principal bedroom has a feature wall with exposed beams and the bathroom is adjacent. Bedroom two is on the second floor.
A stable door in the kitchen opens to the delightful walled courtyard which has a herringbone design brick patio and is ideal for hanging baskets and pots. There is a small brick-built store and a gate to the car park at the rear which the owner pays £150 per annum to the local council for pedestrian access. No onward chain.
Chichester District Council - 25/26 Tax D £2,337.06 EPC-E
From our offices proceed on foot turning right into East Pallant, where number 12 is on the right. what3words - broad.fake.comet
EPC Rating: E
Brochures
Property Brochure- COUNCIL TAXA payment made to your local authority in order to pay for local services like schools, libraries, and refuse collection. The amount you pay depends on the value of the property.Read more about council Tax in our glossary page.
- Band: D
- PARKINGDetails of how and where vehicles can be parked, and any associated costs.Read more about parking in our glossary page.
- Yes
- GARDENA property has access to an outdoor space, which could be private or shared.
- Private garden
- ACCESSIBILITYHow a property has been adapted to meet the needs of vulnerable or disabled individuals.Read more about accessibility in our glossary page.
- Ask agent
East Pallant, Chichester, PO19
Add an important place to see how long it'd take to get there from our property listings.
__mins driving to your place
Get an instant, personalised result:
- Show sellers you’re serious
- Secure viewings faster with agents
- No impact on your credit score
Your mortgage
Notes
Staying secure when looking for property
Ensure you're up to date with our latest advice on how to avoid fraud or scams when looking for property online.
Visit our security centre to find out moreDisclaimer - Property reference 855af8da-b304-40c5-af34-a70bd358d6d2. The information displayed about this property comprises a property advertisement. Rightmove.co.uk makes no warranty as to the accuracy or completeness of the advertisement or any linked or associated information, and Rightmove has no control over the content. This property advertisement does not constitute property particulars. The information is provided and maintained by Henry Adams, Chichester. Please contact the selling agent or developer directly to obtain any information which may be available under the terms of The Energy Performance of Buildings (Certificates and Inspections) (England and Wales) Regulations 2007 or the Home Report if in relation to a residential property in Scotland.
*This is the average speed from the provider with the fastest broadband package available at this postcode. The average speed displayed is based on the download speeds of at least 50% of customers at peak time (8pm to 10pm). Fibre/cable services at the postcode are subject to availability and may differ between properties within a postcode. Speeds can be affected by a range of technical and environmental factors. The speed at the property may be lower than that listed above. You can check the estimated speed and confirm availability to a property prior to purchasing on the broadband provider's website. Providers may increase charges. The information is provided and maintained by Decision Technologies Limited. **This is indicative only and based on a 2-person household with multiple devices and simultaneous usage. Broadband performance is affected by multiple factors including number of occupants and devices, simultaneous usage, router range etc. For more information speak to your broadband provider.
Map data ©OpenStreetMap contributors.








