
Langley Way, West Wickham, BR4

- PROPERTY TYPE
Terraced
- BEDROOMS
4
- BATHROOMS
2
- SIZE
Ask agent
- TENUREDescribes how you own a property. There are different types of tenure - freehold, leasehold, and commonhold.Read more about tenure in our glossary page.
Freehold
Key features
- Chain Free.
- Requiring Modernisation Throughout.
- Off Street Parking.
- Garage To Rear.
- 0.8 Mile West Wickham Station.
- Central Heating.
- Close To Excellent Local Schools.
- Four Bedroom Mid Terrace House.
Description
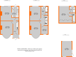
CHAIN FREE and located within a highly desirable road, close to the ever popular Langley Park secondary schools and Pickhurst primary school, is this four bedroom mid terrace family home requiring modernisation throughout. There is a kitchen with a range of cream base and wall units and some integrated appliances, as well as two separate reception rooms, the living room at the front having a bay window and the dining room at the rear having sliding doors to the garden. There are three bedrooms and a shower room to the first floor and stairs to bedroom one and the ensuite in the loft. There is a detached garage, accessible via the rear service road and off street parking for two cars at the front. This property offers buyers a tremendous opportunity to improve and extend in this family friendly location in the heart of West Wickham.
Langley Way runs between Pickhurst Lane and Pickhurst Rise. Local schools include the sought after Pickhurst and Hawes Down Infant and Juniors and Langley Park Secondary schools. West Wickham Station is about 0.6 of a mile away. There are shops in Station Road and West Wickham High Street offers a Sainsbury's, Lidl and Marks and Spencer supermarkets, various restaurants and coffee shops. Bromley South Station and High Street about 1.8 miles away.
Entrance Porch
Double glazed door and windows plus glazed window to side
Entrance
Wooden front door with glazed windows to side
Hallway
4.85m x 1.74m (15' 11" x 5' 9") Radiator, understairs cupboard with light, housing the gas and electric meters, wood effect laminate flooring, stairs to first floor landing
Living Room
4.84m x 3.57m into alcoves (15' 11" x 11' 9") Double glazed bay window to front, radiator, fireplace with fire basket
Dining Room
4.15m x 3.19m into alcoves (13' 7" x 10' 6") Double glazed sliding doors to rear, radiator, wood effect laminate flooring, archway to:
Kitchen
3.22m x 2.09m (10' 7" x 6' 10") Double glazed door and window to rear, range of cream base and wall units with laminate work surfaces over, integrated fridge/freezer, sink and drainer with chrome mixer tap, integrated Whirlpool washing machine and Zanussi dishwasher, freestanding Hotpoint oven and four ring gas hob with Neff extractor fan over, tiled splashback, cupboard housing Worcester Bosch Greenstar boiler, tiled flooring
Landing
Stairs to second floor
Bedroom 2
4.89m into bay x 3.40m (16' 1" x 11' 2") Double glazed bay window to front, radiator
Bedroom 3
4.10m x 3.38m into alcove (13' 5" x 11' 1") Double glazed window to rear, radiator
Bedroom 4
2.71m x 1.97m (8' 11" x 6' 6") Double glazed oriel window to front, radiator, wood effect laminate flooring
Shower Room
2.69m x 1.94m (8' 10" x 6' 4") Double glazed window to rear, low level w.c., shower cubicle with laminate waterproof backing, chrome shower head, seat, ceramic sink and chrome mixer tap and cupboard/drawers beneath, part tiled walls, wood effect laminate flooring
Bedroom 1
4.79m x 3.01m into wardrobes (15' 9" x 9' 11") Double glazed window to rear, radiator, three double door built in wardrobes
En Suite Shower Room
1.84m x 1.76m (6' 0" x 5' 9") Double glazed window to rear, low level w.c., sink with mixer tap and cupboard beneath, shower enclosure with shower head (shower not working), cork flooring
Rear Garden
5.64m x 20.48m (18' 6" x 67' 2") Brick Pavior patio with steps down to level lawn and path to garage, cold water tap
Garage
4.32m x 2.94m (14' 2" x 9' 8") 4.32m x 2.94m (14' 2" x 9' 8") Approached via service road, glazed window and wooden door
Front Garden
Crazy paved driveway with off street parking for two cars, shrub border
Council Tax
London Borough of Bromley - Band F. For the current rate visit: bromley.gov.uk/council-tax/council-tax-guide.
Utilites
Mains - Gas, Electric, Water and Sewerage
Broadband and Mobile
For coverage at this property, please visit:
checker.ofcom.org.uk/en-gb/broadband-coverage
checker.ofcom.org.uk/en-gb/mobile-coverage
Brochures
Brochure 1- COUNCIL TAXA payment made to your local authority in order to pay for local services like schools, libraries, and refuse collection. The amount you pay depends on the value of the property.Read more about council Tax in our glossary page.
- Band: F
- PARKINGDetails of how and where vehicles can be parked, and any associated costs.Read more about parking in our glossary page.
- Yes
- GARDENA property has access to an outdoor space, which could be private or shared.
- Yes
- ACCESSIBILITYHow a property has been adapted to meet the needs of vulnerable or disabled individuals.Read more about accessibility in our glossary page.
- Ask agent
Langley Way, West Wickham, BR4
Add an important place to see how long it'd take to get there from our property listings.
__mins driving to your place
Get an instant, personalised result:
- Show sellers you’re serious
- Secure viewings faster with agents
- No impact on your credit score
Your mortgage
Notes
Staying secure when looking for property
Ensure you're up to date with our latest advice on how to avoid fraud or scams when looking for property online.
Visit our security centre to find out moreDisclaimer - Property reference 28935324. The information displayed about this property comprises a property advertisement. Rightmove.co.uk makes no warranty as to the accuracy or completeness of the advertisement or any linked or associated information, and Rightmove has no control over the content. This property advertisement does not constitute property particulars. The information is provided and maintained by Proctors, West Wickham. Please contact the selling agent or developer directly to obtain any information which may be available under the terms of The Energy Performance of Buildings (Certificates and Inspections) (England and Wales) Regulations 2007 or the Home Report if in relation to a residential property in Scotland.
*This is the average speed from the provider with the fastest broadband package available at this postcode. The average speed displayed is based on the download speeds of at least 50% of customers at peak time (8pm to 10pm). Fibre/cable services at the postcode are subject to availability and may differ between properties within a postcode. Speeds can be affected by a range of technical and environmental factors. The speed at the property may be lower than that listed above. You can check the estimated speed and confirm availability to a property prior to purchasing on the broadband provider's website. Providers may increase charges. The information is provided and maintained by Decision Technologies Limited. **This is indicative only and based on a 2-person household with multiple devices and simultaneous usage. Broadband performance is affected by multiple factors including number of occupants and devices, simultaneous usage, router range etc. For more information speak to your broadband provider.
Map data ©OpenStreetMap contributors.






