
4 bedroom semi-detached house for sale
Prospect Place, Stafford, ST17

- PROPERTY TYPE
Semi-Detached
- BEDROOMS
4
- BATHROOMS
2
- SIZE
Ask agent
- TENUREDescribes how you own a property. There are different types of tenure - freehold, leasehold, and commonhold.Read more about tenure in our glossary page.
Freehold
Key features
- Three/Four Bedroom Modern Semi-Detached Home
- Picturesque Rear Views Over Open Field
- Master Bedroom with Ensuite Shower Room
- Two Further Double Bedrooms and Large Shower Room
- Large Living Room with Juliet Balcony
- Carport, Drive and No Onward Chain
Description
Call us 9AM - 9PM -7 days a week, 365 days a year!
Nestled in the quiet, friendly setting of private Prospect Place, this well presented three-storey home combines modern living with a real sense of community. Boasting three bedrooms—including a master with en-suite—a spacious lounge, contemporary kitchen/diner, and a flexible ground floor room with its own external access, perfect as a home office or fourth bedroom. Outside, enjoy a low-maintenance frontage, private driveway, secure carport, and a raised decked garden with stunning views over open marshland—ideal for soaking up the sun or entertaining. With shops, retail parks, and commuter routes all within walking distance, this home offers the perfect balance of peace, practicality, and picturesque surroundings.
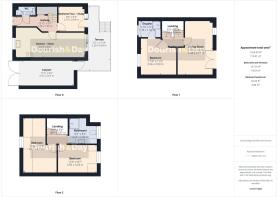
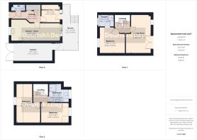
The property features a private driveway, an additional secure carport space, and low-maintenance front garden. Inside, this spacious home is spread over three floors. The ground floor includes a WC, a generous kitchen/diner, and a flexible room perfect as a fourth bedroom, study, or home office—with its own external entrance. On the first floor, you'll find a bright and airy living room with stunning views over open farmland, along with the main bedroom featuring its own en-suite. The top floor offers two further double bedrooms and a modern family shower room. The rear garden is a standout feature, boasting a raised decked terrace with far-reaching views over the marsh—ideal for relaxing or entertaining in the sun.
EPC Rating: C
Entrance Hallway
-
Downstairs WC
-
Kitchen/Diner
-
Bedroom Four / Study
-
First Floor Landing
-
Master Bedroom
-
Ensuite Shower Room
-
Large Living Room
-
Second Floor Landing
-
Bedroom Two
-
Bedroom Three
-
Spacious Shower Room
-
ID Checks
Once an offer is accepted on a property marketed by Dourish & Day estate agents we are required to complete ID verification checks on all buyers and to apply ongoing monitoring until the transaction ends. Whilst this is the responsibility of Dourish & Day we may use the services of MoveButler, to verify Clients’ identity. This is not a credit check and therefore will have no effect on your credit history. You agree for us to complete these checks, and the cost of these checks is £30.00 inc. VAT per buyer. This is paid in advance, when an offer is agreed and prior to a sales memorandum being issued. This charge is non-refundable.
Parking - Car port
Parking - Driveway
- COUNCIL TAXA payment made to your local authority in order to pay for local services like schools, libraries, and refuse collection. The amount you pay depends on the value of the property.Read more about council Tax in our glossary page.
- Band: D
- PARKINGDetails of how and where vehicles can be parked, and any associated costs.Read more about parking in our glossary page.
- Covered,Driveway
- GARDENA property has access to an outdoor space, which could be private or shared.
- Front garden,Rear garden
- ACCESSIBILITYHow a property has been adapted to meet the needs of vulnerable or disabled individuals.Read more about accessibility in our glossary page.
- Ask agent
Prospect Place, Stafford, ST17
Add an important place to see how long it'd take to get there from our property listings.
__mins driving to your place
Get an instant, personalised result:
- Show sellers you’re serious
- Secure viewings faster with agents
- No impact on your credit score
Your mortgage
Notes
Staying secure when looking for property
Ensure you're up to date with our latest advice on how to avoid fraud or scams when looking for property online.
Visit our security centre to find out moreDisclaimer - Property reference 48e1de4b-4c8b-4048-9a12-09a747f1ea13. The information displayed about this property comprises a property advertisement. Rightmove.co.uk makes no warranty as to the accuracy or completeness of the advertisement or any linked or associated information, and Rightmove has no control over the content. This property advertisement does not constitute property particulars. The information is provided and maintained by Dourish & Day, Stafford. Please contact the selling agent or developer directly to obtain any information which may be available under the terms of The Energy Performance of Buildings (Certificates and Inspections) (England and Wales) Regulations 2007 or the Home Report if in relation to a residential property in Scotland.
*This is the average speed from the provider with the fastest broadband package available at this postcode. The average speed displayed is based on the download speeds of at least 50% of customers at peak time (8pm to 10pm). Fibre/cable services at the postcode are subject to availability and may differ between properties within a postcode. Speeds can be affected by a range of technical and environmental factors. The speed at the property may be lower than that listed above. You can check the estimated speed and confirm availability to a property prior to purchasing on the broadband provider's website. Providers may increase charges. The information is provided and maintained by Decision Technologies Limited. **This is indicative only and based on a 2-person household with multiple devices and simultaneous usage. Broadband performance is affected by multiple factors including number of occupants and devices, simultaneous usage, router range etc. For more information speak to your broadband provider.
Map data ©OpenStreetMap contributors.





