
Land for sale
Rare self build opportunity in Bromham, North Bedfordshire.
- PROPERTY TYPE
Land
- BEDROOMS
5
- BATHROOMS
5
- SIZE
Ask agent
Description
Rare Development Opportunity in Bromham.
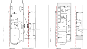
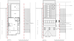
Planning Granted for a 2,778 sq ft Executive Home
An exceptional chance to create a bespoke home in the heart of this highly sought-after Bedfordshire village.
Full planning permission (Ref: 22/02560/FUL) has been granted for a substantial four-bedroom detached residence, beautifully designed to sit comfortably within its surroundings yet offer the best of modern living.
Highlights of the approved scheme include:
• Approximately 2,778 sq ft of internal space
• Four large double bedrooms, each with its own en suite (with option to adapt to five bedrooms if desired)
• Carriage driveway with ample off-road parking for several vehicles
• Private rear garden of around 70ft (approx)
• Views across open fields and the ancient Hanger Wood
• Option to purchase additional garden land and/or a masonry-built garden room/gym/home office
• Contemporary architectural detailing: Juliet balcony, solar panels, brick and render finish, grey-framed glazing
Positioned just off Stagsden Road, the plot enjoys both a semi-rural outlook and village convenience — with excellent local amenities, riverside walks, schools, and swift road links all within easy reach.
Whether you’re a self-builder seeking your forever home, or a developer searching for a standout project, this is a rare and exciting opportunity in one of Bedfordshire’s most desirable villages.
Disclaimer
All descriptions, images and marketing materials are for general guidance only and highlight the lifestyle and features a property may offer. They do not form part of any contract or warranty. Whilst every effort is made to ensure accuracy, neither James Kendall & Co. nor the seller accepts responsibility for any errors. Buyers should verify all details through their own inspections, searches and legal advisers before proceeding.
We are legally required to conduct anti-money laundering checks on all buyers and sellers. These checks are carried out by Lifetime Legal, who will contact you once you've instructed us to sell or had an offer accepted. The cost is £65 (incl. VAT), covering all data retrieval and monitoring required. This non-refundable fee must be paid directly to Lifetime Legal before we publish your property (vendors) or issue a memorandum of sale (buyers). We receive part of this fee for facilitating the service.
Rare self build opportunity in Bromham, North Bedfordshire.
NEAREST STATIONS
Distances are straight line measurements from the centre of the postcode- Bedford Station2.8 miles
- Bedford St. Johns Station3.3 miles
- Kempston Hardwick Station3.8 miles
Notes
Disclaimer - Property reference 25bcdd2c-6d62-4515-be45-f5bd0573e736. The information displayed about this property comprises a property advertisement. Rightmove.co.uk makes no warranty as to the accuracy or completeness of the advertisement or any linked or associated information, and Rightmove has no control over the content. This property advertisement does not constitute property particulars. The information is provided and maintained by James Kendall, Bedford. Please contact the selling agent or developer directly to obtain any information which may be available under the terms of The Energy Performance of Buildings (Certificates and Inspections) (England and Wales) Regulations 2007 or the Home Report if in relation to a residential property in Scotland.
Map data ©OpenStreetMap contributors.







