
3 bedroom barn conversion for sale
Old Hall Court, High Offley, Stafford

- PROPERTY TYPE
Barn Conversion
- BEDROOMS
3
- BATHROOMS
2
- SIZE
1,152 sq ft
107 sq m
- TENUREDescribes how you own a property. There are different types of tenure - freehold, leasehold, and commonhold.Read more about tenure in our glossary page.
Freehold
Key features
- Beautiful Converted Barn Conversion In Picturesque Village Of High Offley - Close To Woodseaves
- Three Bedrooms With En-Suite To Master and Principle Bathroom
- Oak Fitted Kitchen With Quartz Worktops and Breakfast Bar
- Stunning Dual Aspect Living Room With Views Over Farmland and The Court Yard Green
- Guest WC, Utility Area and Garage
- Exposed Beams, Vaulted Ceilings, Inglenook Reading Corner Are Just Some Features
Description
Call us 9AM - 9PM -7 days a week, 365 days a year!
A rare find, this charming, beautifully presented barn conversion is set on a desirable corner plot in High Offley, surrounded by wrap-around gardens, open farmland views, and modern comforts within a peaceful setting.
The property offers the perfect balance of rustic character and contemporary living. A spacious dual-aspect lounge creates a relaxing retreat, while the open-plan kitchen and dining area are ideal for everyday life and entertaining, complemented by a practical utility room and ground-floor WC. Upstairs, the main bedroom enjoys an ensuite bathroom, with two further double bedrooms served by a stylish family bathroom. Exposed beams and high ceilings enhance the sense of space and light throughout.
Externally, the property is approached via a private driveway and includes a garage within a block plus two allocated parking spaces. The gardens wrap around the home, offering tranquillity and far-reaching views across open countryside towards The Wrekin.
The home is well placed for village and town amenities. Nearby Woodseaves offers a local shop, a popular gastro pub (The Cock Inn), and access to the Shropshire Union Canal, with scenic towpath walks. For families, schooling options include Woodseaves CE Primary Academy within easy reach, while secondary and grammar schools such as Burton Borough School, Newport Girls’ High School, and Haberdashers’ Adams Grammar School are a short drive away.
Just a brief journey brings you to Newport with its market town amenities, while regular bus routes also provide connections to both Newport and Eccleshall.
EPC Rating: D
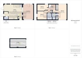
Entrance Hallway
-
Open Plan Kitchen
-
Utility Area
-
Downstairs Guest WC
-
Dining Area
-
Living Room
-
First Floor Landing
-
Bedroom One
-
En-Suite Shower Room
-
Bedroom Two
-
Bedroom Three
-
Bathroom
-
ID Checks
Once an offer is accepted on a property marketed by Dourish & Day estate agents we are required to complete ID verification checks on all buyers and to apply ongoing monitoring until the transaction ends. Whilst this is the responsibility of Dourish & Day we may use the services of MoveButler, to verify Clients’ identity. This is not a credit check and therefore will have no effect on your credit history. You agree for us to complete these checks, and the cost of these checks is £30.00 inc. VAT per buyer. This is paid in advance, when an offer is agreed and prior to a sales memorandum being issued. This charge is non-refundable.
Yard
Featuring a charming front courtyard.
Parking - Garage
A garage with electricity and a boarded upper level.
Parking - Allocated parking
Having allocated parking for two vehicles.
- COUNCIL TAXA payment made to your local authority in order to pay for local services like schools, libraries, and refuse collection. The amount you pay depends on the value of the property.Read more about council Tax in our glossary page.
- Band: D
- PARKINGDetails of how and where vehicles can be parked, and any associated costs.Read more about parking in our glossary page.
- Garage,Off street
- GARDENA property has access to an outdoor space, which could be private or shared.
- Private garden,Rear garden
- ACCESSIBILITYHow a property has been adapted to meet the needs of vulnerable or disabled individuals.Read more about accessibility in our glossary page.
- Ask agent
Old Hall Court, High Offley, Stafford
Add an important place to see how long it'd take to get there from our property listings.
__mins driving to your place
Get an instant, personalised result:
- Show sellers you’re serious
- Secure viewings faster with agents
- No impact on your credit score
Your mortgage
Notes
Staying secure when looking for property
Ensure you're up to date with our latest advice on how to avoid fraud or scams when looking for property online.
Visit our security centre to find out moreDisclaimer - Property reference ab6505b1-2c6b-4fcb-9b0e-09507e384ecb. The information displayed about this property comprises a property advertisement. Rightmove.co.uk makes no warranty as to the accuracy or completeness of the advertisement or any linked or associated information, and Rightmove has no control over the content. This property advertisement does not constitute property particulars. The information is provided and maintained by Dourish & Day, Stafford. Please contact the selling agent or developer directly to obtain any information which may be available under the terms of The Energy Performance of Buildings (Certificates and Inspections) (England and Wales) Regulations 2007 or the Home Report if in relation to a residential property in Scotland.
*This is the average speed from the provider with the fastest broadband package available at this postcode. The average speed displayed is based on the download speeds of at least 50% of customers at peak time (8pm to 10pm). Fibre/cable services at the postcode are subject to availability and may differ between properties within a postcode. Speeds can be affected by a range of technical and environmental factors. The speed at the property may be lower than that listed above. You can check the estimated speed and confirm availability to a property prior to purchasing on the broadband provider's website. Providers may increase charges. The information is provided and maintained by Decision Technologies Limited. **This is indicative only and based on a 2-person household with multiple devices and simultaneous usage. Broadband performance is affected by multiple factors including number of occupants and devices, simultaneous usage, router range etc. For more information speak to your broadband provider.
Map data ©OpenStreetMap contributors.





