
Drake Hill Lane, Bingley, West Yorkshire, BD16

- PROPERTY TYPE
Barn Conversion
- BEDROOMS
5
- BATHROOMS
3
- SIZE
2,300 sq ft
214 sq m
- TENUREDescribes how you own a property. There are different types of tenure - freehold, leasehold, and commonhold.Read more about tenure in our glossary page.
Freehold
Key features
- Outstanding stone built detached residence
- Four/five bedrooms
- Beautifully presented
- Flexible & versatile living accommodation
- Views towards the Aire Valley
- Large gardens extending to 0.6 Acres
- Double garage and ample parking
- Prestigious residential location
Description
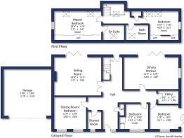
Delightfully situated within an idyllic setting is a beautifully presented four bedroom stone built detached residence offering superb family living accommodation planned over two floors. The rather deceptive nature of the property offers any would-be purchaser versatile and flexible living accommodation and will almost certainly appeal to the more discerning purchaser seeking a home of distinction. The property is presented to an exceptionally high standard throughout with quality kitchen, bathroom and en suite facilities together with UPVC sealed unit double glazing, oil fired under floor heating at ground floor level and alarm system.
The accommodation comprises reception hall, shower room with wc, spacious lounge with feature fireplace incorporating multi fuel burning stove, dining room or bedroom, dining kitchen with range of quality base and wall units granite work surfaces and integrated appliances, utility room and two bedrooms. First floor master bedroom with en suite, bedroom and bathroom.
Indeed an internal inspection is fully recommended to appreciate the versatility and elegance of this beautifully presented residence.
Outside the property is complemented by superior landscaped gardens with extensive lawned areas, large paved patio, flower beds, trees and shrubs enjoying seclusion and stunning views over open countryside. Driveway with ample parking, and double garage with electric doors power and light. Further gravelled parking area and small Paddock area adjoining the plot.
The property is approached by electronically controlled gates through a hamlet of similar high calibre properties.
The property is situated in a semi rural location on the edge of Bingley in a small hamlet of exclusive homes which comprises a number of high quality converted houses, barns and prestigious family properties. The property is approximately two miles distant from Bingley town centre which offers a range of shops, amenities, recreational areas, bars and restaurants together with more respected primary and secondary schools. The location also has excellent road and rail links to other West and North Yorkshire business centres. From Leeds there are frequent connections throughout the day to London Kings Cross, whilst an international airport is just some 10 miles distant.
Local Authority & Council Tax Band
• The City of Bradford Metropolitan District Council,
• Council Tax Band G
Tenure, Services & Parking
• Freehold, Parking and garage
• 1. We have been informed by the vendor that the property is supplied by Mains Electric, private bore hole water supply and treatment plant shared between the residents at Drake Hill farm.
• 2. Septic tank for drainage. All residents will be responsible for the management of the septic tank.
Internet & Mobile Coverage
The Ofcom website shows internet available from at least 1 provider. Outdoor mobile coverage (excl 5G) likely unlikely from at least 1 of the UK’s 4 main providers. Results are predictions not a guarantee & may differ subject to circumstances, exact location & network outages
Flooding
Check for flooding in England - GOV.UK indicate the long term flood risks for this property are: - Surface Water - Very low, Rivers & the Sea - Very low, Groundwater - Flooding from groundwater is unlikely in this area; Reservoir - Flooding from reservoirs is unlikely in this area.
From Dacre Son & Hartley Bingley office proceed along Park Road in the direction of Eldwick. Turn left onto Lady Lane and turn right onto Walsh Lane. Continue to the top of Walsh Lane turning left onto Heights Lane and almost immediately on the right hand side through stone pillars giving access on an unmade track is Drake Hill.
Brochures
Particulars- COUNCIL TAXA payment made to your local authority in order to pay for local services like schools, libraries, and refuse collection. The amount you pay depends on the value of the property.Read more about council Tax in our glossary page.
- Band: G
- PARKINGDetails of how and where vehicles can be parked, and any associated costs.Read more about parking in our glossary page.
- Garage,Driveway
- GARDENA property has access to an outdoor space, which could be private or shared.
- Yes
- ACCESSIBILITYHow a property has been adapted to meet the needs of vulnerable or disabled individuals.Read more about accessibility in our glossary page.
- Ask agent
Drake Hill Lane, Bingley, West Yorkshire, BD16
Add an important place to see how long it'd take to get there from our property listings.
__mins driving to your place
Get an instant, personalised result:
- Show sellers you’re serious
- Secure viewings faster with agents
- No impact on your credit score
Your mortgage
Notes
Staying secure when looking for property
Ensure you're up to date with our latest advice on how to avoid fraud or scams when looking for property online.
Visit our security centre to find out moreDisclaimer - Property reference BIN230160. The information displayed about this property comprises a property advertisement. Rightmove.co.uk makes no warranty as to the accuracy or completeness of the advertisement or any linked or associated information, and Rightmove has no control over the content. This property advertisement does not constitute property particulars. The information is provided and maintained by Dacre Son & Hartley, Bingley. Please contact the selling agent or developer directly to obtain any information which may be available under the terms of The Energy Performance of Buildings (Certificates and Inspections) (England and Wales) Regulations 2007 or the Home Report if in relation to a residential property in Scotland.
*This is the average speed from the provider with the fastest broadband package available at this postcode. The average speed displayed is based on the download speeds of at least 50% of customers at peak time (8pm to 10pm). Fibre/cable services at the postcode are subject to availability and may differ between properties within a postcode. Speeds can be affected by a range of technical and environmental factors. The speed at the property may be lower than that listed above. You can check the estimated speed and confirm availability to a property prior to purchasing on the broadband provider's website. Providers may increase charges. The information is provided and maintained by Decision Technologies Limited. **This is indicative only and based on a 2-person household with multiple devices and simultaneous usage. Broadband performance is affected by multiple factors including number of occupants and devices, simultaneous usage, router range etc. For more information speak to your broadband provider.
Map data ©OpenStreetMap contributors.






