Residential development for sale
The Crescent, Nantwich
- PROPERTY TYPE
Residential Development
- SIZE
Ask agent
Description
A FREEHOLD FORMER GARAGE COMMERCIAL PREMISES IN A PRIME CORNER LOCATION CONVENIENT TO NANTWICH TOWN CENTRE
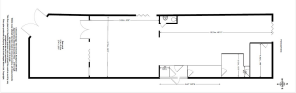
Description - This Commercial premises is built of partial brick and steel construction with an asbestos roof. The premises has been run as a filling station and garage repairs for some 50 years and its now to be sold in its present state and any prospective purchaser would have to make their own enquiries with regards to planning and change of use. Presently the total floor area is 2,181 square feet comprising of shop area, workshops, office, second workshop and rear yard/compound and side vehicle access.
Directions - CW5 5ND
Location & Amenties - Whether you’re a history enthusiast, food lover, or outdoor adventurer, Nantwich delivers a rare blend of tranquillity and vibrancy. With its thriving community, rich heritage, and unbeatable location, it’s no wonder this town is consistently ranked among Cheshire’s most desirable places to live.
Wander cobbled streets lined with timber-framed Tudor buildings, the iconic 12th-century St. Mary’s Church, and the striking Nantwich Market Hall, a testament to the town’s 400-year trading legacy.
Boutique Shopping & Dining: Discover independent boutiques, artisan cafes, and award-winning restaurants. Don’t miss the monthly farmers' market for local produce. Take a dip at Britain’s oldest outdoor saltwater pool, Brine Pool, or stroll along the River Weaver’s tranquil paths and the Shropshire Union Canal.
Savour gourmet delights at the Nantwich Food Festival or tap your feet at the Nantwich Jazz & Blues Festival. The Nantwich Show, a highlight of the agricultural calendar, draws crowds annually.
Tenure - Freehold.
Rateable Value - £9,800
Services - All mains services are available.
N.B. Tests have not been made of electrical, water, drainage and heating systems and associated appliances, nor confirmation obtained from the statutory bodies of the presence of these services. The information given should therefore be verified prior to a legal commitment to purchase.
Viewings - By appointment with Baker Wynne & Wilson
Brochures
The Crescent, NantwichBrochureThe Crescent, Nantwich
NEAREST STATIONS
Distances are straight line measurements from the centre of the postcode- Nantwich Station0.5 miles
- Crewe Station3.7 miles
- Wrenbury Station4.8 miles



Notes
Disclaimer - Property reference 33886642. The information displayed about this property comprises a property advertisement. Rightmove.co.uk makes no warranty as to the accuracy or completeness of the advertisement or any linked or associated information, and Rightmove has no control over the content. This property advertisement does not constitute property particulars. The information is provided and maintained by Baker Wynne & Wilson, Nantwich. Please contact the selling agent or developer directly to obtain any information which may be available under the terms of The Energy Performance of Buildings (Certificates and Inspections) (England and Wales) Regulations 2007 or the Home Report if in relation to a residential property in Scotland.
Map data ©OpenStreetMap contributors.






