
2 bedroom detached house for sale
Hollow Lane, Chillerton

- PROPERTY TYPE
Detached
- BEDROOMS
2
- BATHROOMS
2
- SIZE
Ask agent
- TENUREDescribes how you own a property. There are different types of tenure - freehold, leasehold, and commonhold.Read more about tenure in our glossary page.
Freehold
Key features
- Idyllic Rural Location
- Scenic Views
- Generous Plot with Gravel Driveway
- Set within 1.7 acres
- Stable and Outbuildings
- Proximity to Local Amenities
- Extensive Footpath Network
- Full off Charm and Character
Description
This stunning home is in very good condition throughout and boasts two spacious double bedrooms. Bedroom one has the added benefit of built-in wardrobes, providing ample storage space. The property also includes two reception rooms and two bathrooms, providing plenty of space for family living. The porch with original coffin door leads to the living room. This cosy retreat comes complete with a fireplace with log burner, flagstone floors, and ceiling beams, all of which contribute to the characterful ambience of the room. The dining room includes a coveted 1950's Aga, a delightful nod to the property's heritage.
The generous kitchen is bathed in natural light and features wooden units with bespoke handmade 'Bluebell' tiles, adding a touch of charm and character. This house also benefits from a useful utility/boot room, a conservatory which overlooks the garden, and an attic room, offering versatile spaces to suit your needs and which benefits from stunning views of The Downs.The attic offers huge potential to be converted to two additional bedrooms, subject to obtaining the necessary planning consents.
The garden is planted with a variety of mature shrubs and trees, is laid to lawn and is home to an abundance of wildlife including Red Squirrels. There is also ample off road parking for multiple vehicles on the large gravelled driveway which is accessed via five bar gate.
With an EPC rating of F and a council tax band of E, this property presents an exciting opportunity for those looking for a characterful family home in a desirable location. If you're seeking a property that combines charm with practicality, this could be the perfect home for you.
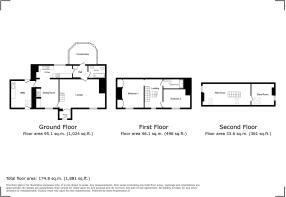
Porch
Lounge
6.78m x 4.24m
Dining Room
3.86m x 4.1m
Kitchen
5.23m x 2.03m
Conservatory
3.96m x 3.05m
Utility Room
3.05m x 4.1m
Bathroom
2.54m x 1.83m
First Floor Landing
Bedroom 1
3.33m x 4.24m
Bedroom 2
3.8m x 2.77m
Shower Room
3.02m x 1.73m
Attic Room
7.14m x 3.1m
Store Room
3.4m x 3.1m
Heating
Oil fired central heating to a radiator system.
Outside
A driveway provides off road parking for multiple vehicles. Four stables and barn. Large lawned garden with mature planting. Two paddocks with water troughs.
Tenure
Freehold
NB
Successful buyers will be required to complete online identity checks provided by Lifetime Legal. The cost of these checks is £80 plus VAT per purchase which is paid in advance, directly to Lifetime Legal. This charge verifies your identity in line with our obligations as agreed with HMRC and includes mover protection insurance to protect against the cost of an abortive purchase.
Brochures
Particulars- COUNCIL TAXA payment made to your local authority in order to pay for local services like schools, libraries, and refuse collection. The amount you pay depends on the value of the property.Read more about council Tax in our glossary page.
- Band: E
- PARKINGDetails of how and where vehicles can be parked, and any associated costs.Read more about parking in our glossary page.
- Yes
- GARDENA property has access to an outdoor space, which could be private or shared.
- Yes
- ACCESSIBILITYHow a property has been adapted to meet the needs of vulnerable or disabled individuals.Read more about accessibility in our glossary page.
- Ask agent
Hollow Lane, Chillerton
Add an important place to see how long it'd take to get there from our property listings.
__mins driving to your place
Get an instant, personalised result:
- Show sellers you’re serious
- Secure viewings faster with agents
- No impact on your credit score
Your mortgage
Notes
Staying secure when looking for property
Ensure you're up to date with our latest advice on how to avoid fraud or scams when looking for property online.
Visit our security centre to find out moreDisclaimer - Property reference TCL220148. The information displayed about this property comprises a property advertisement. Rightmove.co.uk makes no warranty as to the accuracy or completeness of the advertisement or any linked or associated information, and Rightmove has no control over the content. This property advertisement does not constitute property particulars. The information is provided and maintained by Hose Rhodes Dickson, Newport. Please contact the selling agent or developer directly to obtain any information which may be available under the terms of The Energy Performance of Buildings (Certificates and Inspections) (England and Wales) Regulations 2007 or the Home Report if in relation to a residential property in Scotland.
*This is the average speed from the provider with the fastest broadband package available at this postcode. The average speed displayed is based on the download speeds of at least 50% of customers at peak time (8pm to 10pm). Fibre/cable services at the postcode are subject to availability and may differ between properties within a postcode. Speeds can be affected by a range of technical and environmental factors. The speed at the property may be lower than that listed above. You can check the estimated speed and confirm availability to a property prior to purchasing on the broadband provider's website. Providers may increase charges. The information is provided and maintained by Decision Technologies Limited. **This is indicative only and based on a 2-person household with multiple devices and simultaneous usage. Broadband performance is affected by multiple factors including number of occupants and devices, simultaneous usage, router range etc. For more information speak to your broadband provider.
Map data ©OpenStreetMap contributors.








