The Aberlour, St. Cyrus

- PROPERTY TYPE
Detached
- BEDROOMS
5
- BATHROOMS
3
- SIZE
Ask agent
- TENUREDescribes how you own a property. There are different types of tenure - freehold, leasehold, and commonhold.Read more about tenure in our glossary page.
Ask agent
Description
The Aberlour – A Sophisticated Five-Bedroom Family Home Blending Space, Style, and Comfort
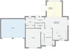
Step through the front door into an impressive vaulted entrance hall that immediately creates a sense of grandeur and openness. From here, the home unfolds into a beautifully designed open-plan kitchen, family room, and dining area to the rear of the property. This space is the vibrant heart of the home—ideal for everything from relaxed family meals to hosting friends in comfort and style.
For those who desire even more space, The Aberlour offers the option of extending the family room to include the signature Snowdrop glazed gable and vaulted ceiling. This striking architectural feature enhances the light and scale of the living space, adding a true “wow” factor to the home.
Tucked behind the kitchen area is a practical mud room with direct access to the rear garden—perfect for busy households, dog owners, or keen gardeners. A separate utility room and an integral double garage offer additional storage and convenience, helping keep the main living areas clutter-free.
To the front of the home, a large formal lounge provides a more intimate and quiet space for evening relaxation or entertaining guests, offering a perfect balance to the open-plan layout.
Upstairs, the luxurious master suite serves as a private retreat, complete with a beautifully appointed en-suite bathroom and a spacious walk-in wardrobe. Four additional generously sized bedrooms are arranged around a wide landing and are conveniently located near a large, modern family bathroom—providing flexibility for families of all sizes and needs.
The Aberlour combines elegant architectural features with practical family-focused design, making it the perfect forever home for those seeking space, comfort, and timeless style.
For further information or to arrange a private viewing, contact Rosie Fraser Real Estate today.
Optional sun space extension available - The Aberlour: £50,000
Ground Floor – Indicative Room Dimensions
Lounge4.64m x 6.04m
Kitchen Area3.76m x 4.68m
Family/Dining Area3.48m x 7.16m
Mud Room1.76m x 3.00m
Utility2.56m x 2.84m
W.C.1.60m x 2.20m
Garage6.00m x 7.46m
Optional Sunroom4.74m x 5.00m
Master Suite3.51m x 5.78m
Master En-Suite1.70m x 2.91m
Bedroom 24.66m x 3.31m
Bedroom 33.02m x 3.64m
Bedroom 43.49m x 4.20m
Bedroom 53.49m x 3.28m
Bathroom2.86m x 3.49m
Brochures
Aberlour.pdfBrochure- COUNCIL TAXA payment made to your local authority in order to pay for local services like schools, libraries, and refuse collection. The amount you pay depends on the value of the property.Read more about council Tax in our glossary page.
- Ask agent
- PARKINGDetails of how and where vehicles can be parked, and any associated costs.Read more about parking in our glossary page.
- Yes
- GARDENA property has access to an outdoor space, which could be private or shared.
- Ask agent
- ACCESSIBILITYHow a property has been adapted to meet the needs of vulnerable or disabled individuals.Read more about accessibility in our glossary page.
- Ask agent
Energy performance certificate - ask agent
The Aberlour, St. Cyrus
Add an important place to see how long it'd take to get there from our property listings.
__mins driving to your place
Get an instant, personalised result:
- Show sellers you’re serious
- Secure viewings faster with agents
- No impact on your credit score

Your mortgage
Notes
Staying secure when looking for property
Ensure you're up to date with our latest advice on how to avoid fraud or scams when looking for property online.
Visit our security centre to find out moreDisclaimer - Property reference 33915337. The information displayed about this property comprises a property advertisement. Rightmove.co.uk makes no warranty as to the accuracy or completeness of the advertisement or any linked or associated information, and Rightmove has no control over the content. This property advertisement does not constitute property particulars. The information is provided and maintained by Rosie Fraser Real Estate, Dundee. Please contact the selling agent or developer directly to obtain any information which may be available under the terms of The Energy Performance of Buildings (Certificates and Inspections) (England and Wales) Regulations 2007 or the Home Report if in relation to a residential property in Scotland.
*This is the average speed from the provider with the fastest broadband package available at this postcode. The average speed displayed is based on the download speeds of at least 50% of customers at peak time (8pm to 10pm). Fibre/cable services at the postcode are subject to availability and may differ between properties within a postcode. Speeds can be affected by a range of technical and environmental factors. The speed at the property may be lower than that listed above. You can check the estimated speed and confirm availability to a property prior to purchasing on the broadband provider's website. Providers may increase charges. The information is provided and maintained by Decision Technologies Limited. **This is indicative only and based on a 2-person household with multiple devices and simultaneous usage. Broadband performance is affected by multiple factors including number of occupants and devices, simultaneous usage, router range etc. For more information speak to your broadband provider.
Map data ©OpenStreetMap contributors.



