
Dacre Banks, Harrogate, HG3

- PROPERTY TYPE
Semi-Detached
- BEDROOMS
2
- BATHROOMS
2
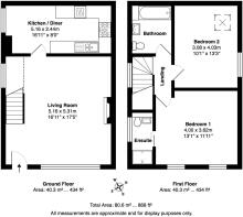
- SIZE
868 sq ft
81 sq m
- TENUREDescribes how you own a property. There are different types of tenure - freehold, leasehold, and commonhold.Read more about tenure in our glossary page.
Freehold
Key features
- RARE AND HIGHLY DESIRABLE NEWLY CONVERTED COTTAGE
- PRIME LOCATION IN SOUGHT-AFTER NIDDERDALE VILLAGE
- ORIGINAL CHARACTER FEATURES INCLUDING EXPOSED BEAMS
- STUNNING PICTURE WINDOW WITH VILLAGE GREEN VIEWS
- STYLISH MODERN KITCHEN WITH INTEGRATED APPLIANCES AND DINING AREA
- FRONT FLAGGED AREA PROVIDING SEATING OR OFF-STREET PARKING
- PERFECT BLEND OF PERIOD CHARM AND CONTEMPORARY STYLE
Description
A rare and highly desirable opportunity to acquire this newly converted cottage, beautifully finished to an exceptional standard while retaining original character features, including exposed bedroom beams and a stunning picture window framing idyllic views over the village green.
The accommodation includes a spacious living room with an open staircase leading to the first floor, and a beautifully designed kitchen with integrated appliances and a dining area—perfect for both everyday living and entertaining. There are two generously sized double bedrooms, with the principal bedroom featuring an en-suite shower room and delightful views to the front. A contemporary house bathroom, finished to a high standard, completes the interior.
To the front of the property is a flagged area that can serve as a pleasant seating spot or provide off-street parking.
EPC Rating: C
Parking - Driveway
- COUNCIL TAXA payment made to your local authority in order to pay for local services like schools, libraries, and refuse collection. The amount you pay depends on the value of the property.Read more about council Tax in our glossary page.
- Band: C
- PARKINGDetails of how and where vehicles can be parked, and any associated costs.Read more about parking in our glossary page.
- Driveway
- GARDENA property has access to an outdoor space, which could be private or shared.
- Ask agent
- ACCESSIBILITYHow a property has been adapted to meet the needs of vulnerable or disabled individuals.Read more about accessibility in our glossary page.
- Ask agent
Energy performance certificate - ask agent
Dacre Banks, Harrogate, HG3
Add an important place to see how long it'd take to get there from our property listings.
__mins driving to your place
Get an instant, personalised result:
- Show sellers you’re serious
- Secure viewings faster with agents
- No impact on your credit score
Your mortgage
Notes
Staying secure when looking for property
Ensure you're up to date with our latest advice on how to avoid fraud or scams when looking for property online.
Visit our security centre to find out moreDisclaimer - Property reference bbc932de-0071-4f7d-8b26-7ed6200ae1b5. The information displayed about this property comprises a property advertisement. Rightmove.co.uk makes no warranty as to the accuracy or completeness of the advertisement or any linked or associated information, and Rightmove has no control over the content. This property advertisement does not constitute property particulars. The information is provided and maintained by Myrings Estate Agents, Harrogate. Please contact the selling agent or developer directly to obtain any information which may be available under the terms of The Energy Performance of Buildings (Certificates and Inspections) (England and Wales) Regulations 2007 or the Home Report if in relation to a residential property in Scotland.
*This is the average speed from the provider with the fastest broadband package available at this postcode. The average speed displayed is based on the download speeds of at least 50% of customers at peak time (8pm to 10pm). Fibre/cable services at the postcode are subject to availability and may differ between properties within a postcode. Speeds can be affected by a range of technical and environmental factors. The speed at the property may be lower than that listed above. You can check the estimated speed and confirm availability to a property prior to purchasing on the broadband provider's website. Providers may increase charges. The information is provided and maintained by Decision Technologies Limited. **This is indicative only and based on a 2-person household with multiple devices and simultaneous usage. Broadband performance is affected by multiple factors including number of occupants and devices, simultaneous usage, router range etc. For more information speak to your broadband provider.
Map data ©OpenStreetMap contributors.








