
Chapel Street, Chichester, PO19

- PROPERTY TYPE
 Retirement Property
- BEDROOMS
 2
- BATHROOMS
 2
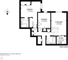
- SIZE
 700 sq ft
65 sq m
Key features
- Spacious 716 sqft retirement apartment
 - First floor
 - South facing sitting room
 - En-suite principal bedroom
 - On-site manager and out of hours back up
 - Communal garden and laundry
 - Guest suite
 
Description
A chain free first floor retirement apartment in the heart of the city centre
A spacious two-bedroom first-floor retirement apartment, ideally situated in the heart of the city centre. The apartment offers well-planned accommodation providing both comfort and convenience. The property comprises an entrance hall, a sunny south-facing sitting room that fills with natural light, kitchen, a principal bedroom with en-suite shower room, a second bedroom and a separate bathroom.
For added peace of mind, the scheme has a manager on site, as well as a Careline on call system for out-of-hours emergency support. Residents also benefit from attractively landscaped communal gardens, a guest suite for visiting family and friends and a shared laundry room. The property is offered with no onward chain, making it an ideal choice for those looking to move quickly and with minimal hassle.
Lease - 125 years from 01/01/1986 (85 years remaining)
Service Charge - For 2022 is £4,032.87 per annum (estimated)
Ground rent - £75 per annum
Chichester District Council - 25/26 Tax Band C £2,077.38 EPC-C
Directions - Proceed on foot from the city centre cross into West Street with the cathedral on the left, turn right into Chapel Street. Follow the road north and Providence Place is on the left. There is a pay and display car park a short distance along on the right. what3words - manliness.these.class
EPC Rating: C
Brochures
Property Brochure- COUNCIL TAXA payment made to your local authority in order to pay for local services like schools, libraries, and refuse collection. The amount you pay depends on the value of the property.Read more about council Tax in our glossary page.
 - Band: C
 - PARKINGDetails of how and where vehicles can be parked, and any associated costs.Read more about parking in our glossary page.
 - Yes
 - GARDENA property has access to an outdoor space, which could be private or shared.
 - Communal garden
 - ACCESSIBILITYHow a property has been adapted to meet the needs of vulnerable or disabled individuals.Read more about accessibility in our glossary page.
 - Ask agent
 
Energy performance certificate - ask agent
Chapel Street, Chichester, PO19
Add an important place to see how long it'd take to get there from our property listings.
__mins driving to your place
Explore area BETA
Chichester
Get to know this area with AI-generated guides about local green spaces, transport links, restaurants and more.
Notes
Staying secure when looking for property
Ensure you're up to date with our latest advice on how to avoid fraud or scams when looking for property online.
Visit our security centre to find out moreDisclaimer - Property reference 8341b3ee-2d89-4e74-9348-5858380eb61f. The information displayed about this property comprises a property advertisement. Rightmove.co.uk makes no warranty as to the accuracy or completeness of the advertisement or any linked or associated information, and Rightmove has no control over the content. This property advertisement does not constitute property particulars. The information is provided and maintained by Henry Adams, Chichester. Please contact the selling agent or developer directly to obtain any information which may be available under the terms of The Energy Performance of Buildings (Certificates and Inspections) (England and Wales) Regulations 2007 or the Home Report if in relation to a residential property in Scotland.
*This is the average speed from the provider with the fastest broadband package available at this postcode. The average speed displayed is based on the download speeds of at least 50% of customers at peak time (8pm to 10pm). Fibre/cable services at the postcode are subject to availability and may differ between properties within a postcode. Speeds can be affected by a range of technical and environmental factors. The speed at the property may be lower than that listed above. You can check the estimated speed and confirm availability to a property prior to purchasing on the broadband provider's website. Providers may increase charges. The information is provided and maintained by Decision Technologies Limited. **This is indicative only and based on a 2-person household with multiple devices and simultaneous usage. Broadband performance is affected by multiple factors including number of occupants and devices, simultaneous usage, router range etc. For more information speak to your broadband provider.
Map data ©OpenStreetMap contributors.








