Johnson Close, Burton Latimer

- PROPERTY TYPE
Detached
- BEDROOMS
5
- BATHROOMS
4
- SIZE
Ask agent
- TENUREDescribes how you own a property. There are different types of tenure - freehold, leasehold, and commonhold.Read more about tenure in our glossary page.
Freehold
Key features
- NO ONWARD CHAIN
- 5 DOUBLE Bedrooms
- 2 EV Charging Points
- Private Gates, Driveway & Detached Double Garage
- West Facing Wrap-Around Garden
- Solar Panels With Battery Storage
- Kitchen Diner Family Room
- Close to Local Amenities & Great Road Links
Description
Located on the sought-after Buckby Grange Development in Burton Latimer, this impressive five-bedroom detached family home offers generous living space, high-spec features, and excellent energy efficiency. All set behind private gates in a fantastic residential setting.
The property is set back from the road, offering off-road parking for multiple vehicles and a detached double garage fitted with two EV charging points. The garage also benefits from partial conversion, with a boarded ceiling, electricity, and main water supply, making it ideal for storage, a workshop, or future development.
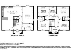
Step inside to a bright and welcoming through hallway, giving access to the heart of the home – a stunning open-plan lounge/dining/living space, perfect for modern family life and entertaining. The spacious kitchen features a range of built-in appliances, space for a dining table and sofas, and French doors that open out onto the rear garden. A separate lounge, also with doors onto the garden, provides a cosy retreat, while a study room offers an ideal space for remote working. A ground floor W/C completes the layout.
Upstairs, the property boasts five double bedrooms, with both the master bedroom and second bedroom benefiting from ensuite shower rooms. A modern family bathroom serves the remaining bedrooms, making this an ideal home for growing families.
The west-facing, wrap-around garden has been landscaped for both style and functionality, featuring a large slabbed patio area, decked area, and a lawned space perfect for children or entertaining. The garden also provides direct access to the garage.
Further enhancing the home’s eco-credentials, the property is fitted with solar panels and battery storage, significantly reducing energy costs and improving sustainability.
This outstanding home combines spacious living, modern comforts, and premium features in a prime location.
Please call Oscar James to book a viewing today!
Brochures
Johnson Close, Burton Latimer- COUNCIL TAXA payment made to your local authority in order to pay for local services like schools, libraries, and refuse collection. The amount you pay depends on the value of the property.Read more about council Tax in our glossary page.
- Ask agent
- PARKINGDetails of how and where vehicles can be parked, and any associated costs.Read more about parking in our glossary page.
- Yes
- GARDENA property has access to an outdoor space, which could be private or shared.
- Yes
- ACCESSIBILITYHow a property has been adapted to meet the needs of vulnerable or disabled individuals.Read more about accessibility in our glossary page.
- Ask agent
Energy performance certificate - ask agent
Johnson Close, Burton Latimer
Add an important place to see how long it'd take to get there from our property listings.
__mins driving to your place
Get an instant, personalised result:
- Show sellers you’re serious
- Secure viewings faster with agents
- No impact on your credit score
Your mortgage
Notes
Staying secure when looking for property
Ensure you're up to date with our latest advice on how to avoid fraud or scams when looking for property online.
Visit our security centre to find out moreDisclaimer - Property reference 33933054. The information displayed about this property comprises a property advertisement. Rightmove.co.uk makes no warranty as to the accuracy or completeness of the advertisement or any linked or associated information, and Rightmove has no control over the content. This property advertisement does not constitute property particulars. The information is provided and maintained by Oscar James, Burton Latimer. Please contact the selling agent or developer directly to obtain any information which may be available under the terms of The Energy Performance of Buildings (Certificates and Inspections) (England and Wales) Regulations 2007 or the Home Report if in relation to a residential property in Scotland.
*This is the average speed from the provider with the fastest broadband package available at this postcode. The average speed displayed is based on the download speeds of at least 50% of customers at peak time (8pm to 10pm). Fibre/cable services at the postcode are subject to availability and may differ between properties within a postcode. Speeds can be affected by a range of technical and environmental factors. The speed at the property may be lower than that listed above. You can check the estimated speed and confirm availability to a property prior to purchasing on the broadband provider's website. Providers may increase charges. The information is provided and maintained by Decision Technologies Limited. **This is indicative only and based on a 2-person household with multiple devices and simultaneous usage. Broadband performance is affected by multiple factors including number of occupants and devices, simultaneous usage, router range etc. For more information speak to your broadband provider.
Map data ©OpenStreetMap contributors.




