
The Square, Allonby, CA15

- PROPERTY TYPE
Cottage
- BEDROOMS
2
- BATHROOMS
1
- SIZE
764 sq ft
71 sq m
- TENUREDescribes how you own a property. There are different types of tenure - freehold, leasehold, and commonhold.Read more about tenure in our glossary page.
Freehold
Key features
- Two bed mid terrace cottage
- Quiet position in popular coastal village
- Newly installed gas heating system
- Courtyard to rear
- No onward chain
- Tenure: Freehold
- Council Tax: Band A
- EPC rating E
Description
A cute and cosy two bed mid terrace cottage in the popular coastal village of Allonby, Kaths Cottage sits tucked away in a pretty and peaceful cobbled courtyard just a stones throw from the sandy beach of Allonby Bay and is perfect for a first time buyer, downsizer or anyone looking for a bolthole in this Area of Outstanding Natural Beauty.
The accommodation comprises lounge/dining room with recently installed laminate flooring, open fire in stone hearth and dining space for 6, shaker style contemporary kitchen, double and single bedroom, and a large wet room style bathroom with mains powered shower.
Externally there is a small courtyard to the rear.
Sold with no onward chain!
EPC Rating: E
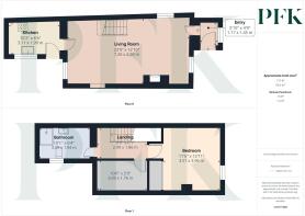
Lounge/Dining Room
7.26m x 3.93m
Front aspect generously proportioned room, with open fire in stone surround, stairs to first floor, dining space for a six person table, and laminate flooring.
Kitchen
3.11m x 1.99m
Side aspect room comprising a range of base and wall units in a cream finish with complementary butcher block effect counter top. Stainless steel sink with drainage board and mixer tap, plumbing for under counter washer and dryer. Space for freestanding fridge freezer and point for electric cooker. Tiled splashback.
Bedroom 1
3.51m x 3.96m
Front aspect double bedroom with built in wardrobes.
Bedroom 2
3.05m x 1.76m
Rear aspect single bedroom with Velux sky light and recently installed gas combi boiler.
Bathroom
3.09m x 1.94m
Side aspect wet room with mains shower, WC, wash hand basin, heated towel rail and tiled walls.
Directions
The property can be found situated behind The Ship Inn, in The Square, using what3words- ///shadows.flattered.purified
Services
Mains gas, electricity, water & drainage. Gas fired central heating and double glazing installed throughout. Please note: The mention of any appliances/services within these particulars does not imply that they are in full and efficient working order.
Referral & Other Payments
PFK work with preferred providers for certain services necessary for a house sale or purchase. Our providers price their products competitively, however you are under no obligation to use their services and may wish to compare them against other providers. Should you choose to utilise them PFK will receive a referral fee : Napthens LLP, Bendles LLP, Scott Duff & Co, Knights PLC, Newtons Ltd - completion of sale or purchase - £120 to £210 per transaction; Emma Harrison Financial Services – arrangement of mortgage & other products/insurances - average referral fee earned in 2024 was £221.00; M & G EPCs Ltd - EPC/Floorplan Referrals - EPC & Floorplan £35.00, EPC only £24.00, Floorplan only £6.00. Anti Money Laundering (AML) compliance check via Landmark referral between £8.50 to £15.50. All figures quoted are inclusive of VAT.
Yard
A courtyard garden to the rear.
Brochures
Property Brochure- COUNCIL TAXA payment made to your local authority in order to pay for local services like schools, libraries, and refuse collection. The amount you pay depends on the value of the property.Read more about council Tax in our glossary page.
- Band: A
- PARKINGDetails of how and where vehicles can be parked, and any associated costs.Read more about parking in our glossary page.
- Ask agent
- GARDENA property has access to an outdoor space, which could be private or shared.
- Private garden
- ACCESSIBILITYHow a property has been adapted to meet the needs of vulnerable or disabled individuals.Read more about accessibility in our glossary page.
- Ask agent
The Square, Allonby, CA15
Add an important place to see how long it'd take to get there from our property listings.
__mins driving to your place
Get an instant, personalised result:
- Show sellers you’re serious
- Secure viewings faster with agents
- No impact on your credit score
Your mortgage
Notes
Staying secure when looking for property
Ensure you're up to date with our latest advice on how to avoid fraud or scams when looking for property online.
Visit our security centre to find out moreDisclaimer - Property reference 0e9dddb7-c01c-44e1-a9a6-f9bb69d5f569. The information displayed about this property comprises a property advertisement. Rightmove.co.uk makes no warranty as to the accuracy or completeness of the advertisement or any linked or associated information, and Rightmove has no control over the content. This property advertisement does not constitute property particulars. The information is provided and maintained by PFK, Cockermouth. Please contact the selling agent or developer directly to obtain any information which may be available under the terms of The Energy Performance of Buildings (Certificates and Inspections) (England and Wales) Regulations 2007 or the Home Report if in relation to a residential property in Scotland.
*This is the average speed from the provider with the fastest broadband package available at this postcode. The average speed displayed is based on the download speeds of at least 50% of customers at peak time (8pm to 10pm). Fibre/cable services at the postcode are subject to availability and may differ between properties within a postcode. Speeds can be affected by a range of technical and environmental factors. The speed at the property may be lower than that listed above. You can check the estimated speed and confirm availability to a property prior to purchasing on the broadband provider's website. Providers may increase charges. The information is provided and maintained by Decision Technologies Limited. **This is indicative only and based on a 2-person household with multiple devices and simultaneous usage. Broadband performance is affected by multiple factors including number of occupants and devices, simultaneous usage, router range etc. For more information speak to your broadband provider.
Map data ©OpenStreetMap contributors.





