
Bone Mill Road, Bolingey, Perranporth
- PROPERTY TYPE
Plot
- BEDROOMS
3
- BATHROOMS
2
- SIZE
Ask agent
Key features
- Former Bone Mill with Planning Permission
- A Contemporary Design while keeping the Original Mill
- Approximately 0.8 Acres
- Enclosed Land, Surrounded by Mature Trees
- Quiet Rural Setting
- Small Private Woodland
- Large Welfare Unit on Site
- Private Bore Hole for Clean, Private Water Supply
- PA22/04156
- What3words: ///extension.salad.cuter
Description
Bone Mill Development - With Planning Permission – Dating back to the mid to late 19th century, this former Bone and Corn Mill is located in the rural hamlet of Bolingey and is set to become part of a striking, cross contemporary and period family living. Set within its own grounds, which include a small woodland and a beautiful enclosed meadow totaling approximately 0.8 acres, it is ideal for those looking to build their dream home with a bit of land, close to
the coast. Planning documents can be found on the Cornwall planning register -REF PA22/04156
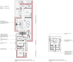
The dwelling will truly combine the old with the new, retaining original features such as the old stone walls, Delabole slate roof, and the reinstated water wheel, while incorporating an expanse of glass overlooking the meadow. The granted planning permission and the existing architectural design aim to preserve the site's historical character while adapting it for modern use.
Accommodation for the new dwelling will comprise three bedrooms, a living room, kitchen/diner, family bathroom and a master en-suite, and a utility room.
Some History Of The Mill - The Bone Mill on Bone Mill Road in Bolingey, near Perranporth, Cornwall, is a historic industrial site dating back to the mid to late 19th century. Originally, it functioned as a bone and corn mill, serving the agricultural needs of the local rural community. Archaeological investigations have uncovered features such as a post-medieval leat and boundary walls, indicating the site's historical significance.
The barn is considered a non-designated heritage asset, meaning it is a structure, site, or landscape of historical, architectural, archaeological, or cultural significance that does not benefit from statutory protection through national listing. Bone Mill Road, where the mill is located, takes its name from the historic Bone Mill itself.
Directions - Sat Nav: TR6 0AS
What3words: ///extension.salad.cuter
For further information please contact Camel Coastal & Country.
Agents Notes - VIEWINGS: Strictly by appointment only with Camel Homes, Perranporth.
MONEY LAUNDERING REGULATIONS
Intending purchasers will be asked to produce identification documentation at offer stage and we would ask for your co-operation in order that there will be no delay in agreeing the sale.
PROPERTY MISDESCRIPTIONS
These details are for guidance only and complete accuracy cannot be guaranteed. They do not constitute a contract or part of a contract. All measurements are approximate. No guarantee can be given with regard to planning permissions or fitness for purpose. No guarantee can be given that the property is free from any latent or inherent defect. No apparatus, equipment, fixture or fitting has been tested. Items shown in photographs and plans are NOT necessarily included. If there is any point which is of particular importance to you, verification should be obtained. Interested parties are advised to check availability and make an appointment to view before travelling to see a property.
DATA PROTECTION ACT 2018
Please note that all personal information provided by customers wishing to receive information and/or services from the estate agent will be processed by the estate agent, for the purpose of providing services associated with the business of an estate agent and for the additional purposes set out in the privacy policy, copies available on request, but specifically excluding mailings or promotions by a third party. If you do not wish your personal information to be used for any of these purposes, please notify your estate agent.
Brochures
Bone Mill Road, Bolingey, PerranporthBone Mill Road, Bolingey, Perranporth
NEAREST STATIONS
Distances are straight line measurements from the centre of the postcode- Truro Station5.9 miles



Notes
Disclaimer - Property reference 33951251. The information displayed about this property comprises a property advertisement. Rightmove.co.uk makes no warranty as to the accuracy or completeness of the advertisement or any linked or associated information, and Rightmove has no control over the content. This property advertisement does not constitute property particulars. The information is provided and maintained by Camel Coastal and Country, Perranporth. Please contact the selling agent or developer directly to obtain any information which may be available under the terms of The Energy Performance of Buildings (Certificates and Inspections) (England and Wales) Regulations 2007 or the Home Report if in relation to a residential property in Scotland.
Map data ©OpenStreetMap contributors.







