
4 bedroom semi-detached house for sale
Bowley Lane, South Mundham, PO20

- PROPERTY TYPE
Semi-Detached
- BEDROOMS
4
- BATHROOMS
2
- SIZE
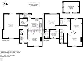
1,518 sq ft
141 sq m
- TENUREDescribes how you own a property. There are different types of tenure - freehold, leasehold, and commonhold.Read more about tenure in our glossary page.
Freehold
Key features
- Quiet rural location
- Semi-detached house
- Dual aspect sitting/dining room
- Four bedrooms
- En-suite shower and family bathroom
- Countryside views
- Gravelled driveway providing ample parking
- West facing gardens
Description
Set in a desirable rural location near Chichester and within easy reach of local farm shops, this characterful four-bedroom home offers an ideal blend of period charm and contemporary living. Light-filled and thoughtfully designed throughout, the ground floor begins with a welcoming entrance hallway leading to a front-facing drawing room with a feature fireplace. To the rear, a spacious dual-aspect sitting and dining room opens onto the garden through bi-folding doors, creating a seamless indoor-outdoor flow. The traditional farmhouse-style kitchen is the heart of the home, a sociable space with wooden cabinetry, a stainless-steel feature island, an adjoining utility and a separate boot room. A downstairs WC completes the ground floor accommodation.
Upstairs, four generously sized bedrooms enjoy elevated views across the surrounding countryside. The principal bedroom benefits from a stylish en-suite shower room, while the luxurious family bathroom features a contemporary suite with a separate shower cubicle, offering both comfort and practicality for modern family life.
The property is set back from the lane behind mature evergreen hedging, with a gravelled driveway providing ample parking. To the rear, the landscaped garden offers a mix of lawn and raised decking areas ideal for entertaining or relaxing. A versatile outbuilding offers further potential, perfect as a workshop, home office, or studio space, completing this charming and well-appointed countryside home.
Chichester District Council - 25/26 Tax Band D £2,347.16 EPC-F
Directions - Proceed south down Vinnetrow Road and at the roundabout proceed straight over into Mill Lane. Follow the road south into Runcton Lane. Continue along this road taking the first turning left into Bowley Lane (signposed Bowley Banwell). Continue south and take the next turning on the left into Bowley Lane (no through road). No 2 Bowley Cottages in on the right before the private lane to Bowley Farm what3words.com/scanning.snaps.parsnips
Parking - Off street
Brochures
Property Brochure- COUNCIL TAXA payment made to your local authority in order to pay for local services like schools, libraries, and refuse collection. The amount you pay depends on the value of the property.Read more about council Tax in our glossary page.
- Band: D
- PARKINGDetails of how and where vehicles can be parked, and any associated costs.Read more about parking in our glossary page.
- Off street
- GARDENA property has access to an outdoor space, which could be private or shared.
- Private garden
- ACCESSIBILITYHow a property has been adapted to meet the needs of vulnerable or disabled individuals.Read more about accessibility in our glossary page.
- Ask agent
Energy performance certificate - ask agent
Bowley Lane, South Mundham, PO20
Add an important place to see how long it'd take to get there from our property listings.
__mins driving to your place
Get an instant, personalised result:
- Show sellers you’re serious
- Secure viewings faster with agents
- No impact on your credit score
Your mortgage
Notes
Staying secure when looking for property
Ensure you're up to date with our latest advice on how to avoid fraud or scams when looking for property online.
Visit our security centre to find out moreDisclaimer - Property reference 1297454c-9ef6-4347-a850-5a32d871b6fc. The information displayed about this property comprises a property advertisement. Rightmove.co.uk makes no warranty as to the accuracy or completeness of the advertisement or any linked or associated information, and Rightmove has no control over the content. This property advertisement does not constitute property particulars. The information is provided and maintained by Henry Adams, Chichester. Please contact the selling agent or developer directly to obtain any information which may be available under the terms of The Energy Performance of Buildings (Certificates and Inspections) (England and Wales) Regulations 2007 or the Home Report if in relation to a residential property in Scotland.
*This is the average speed from the provider with the fastest broadband package available at this postcode. The average speed displayed is based on the download speeds of at least 50% of customers at peak time (8pm to 10pm). Fibre/cable services at the postcode are subject to availability and may differ between properties within a postcode. Speeds can be affected by a range of technical and environmental factors. The speed at the property may be lower than that listed above. You can check the estimated speed and confirm availability to a property prior to purchasing on the broadband provider's website. Providers may increase charges. The information is provided and maintained by Decision Technologies Limited. **This is indicative only and based on a 2-person household with multiple devices and simultaneous usage. Broadband performance is affected by multiple factors including number of occupants and devices, simultaneous usage, router range etc. For more information speak to your broadband provider.
Map data ©OpenStreetMap contributors.








