Steventon New Road, Ludlow, Shropshire
- PROPERTY TYPE
Plot
- SIZE
Ask agent
Key features
- 25/00347/FUL Planning Reference
- 0.35 acres plot in total
- Gross internal floor area 195 sqm
- Full planning permission granted
Description
The town’s strong sense of community, alongside its proximity to major transport links like the A49 and train services to nearby cities, ensures that you can enjoy a peaceful, slower pace of life without being too far removed from modern amenities. Moreover, the ability to design a home suited to your needs, combined with the natural beauty and heritage of Ludlow, makes it an attractive and desirable location for those seeking both comfort and a connection to nature.
The building plot located on Steventon New Road in Ludlow represents an exciting opportunity for self-builders or developers looking to construct a bespoke home in a desirable edge-of-town location. Encompassing approximately 0.35 acres, the plot offers generous space for a detached dwelling with ample scope for gardens, landscaping, and parking.
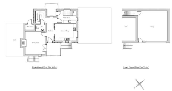
The site benefits from full planning consent, granted by Shropshire Council under reference 25/00347/FUL, for the erection of a contemporary residential dwelling. The approved plans propose a spacious house with a gross internal floor area of 195 square metres (approximately 2,100 square feet). This allows for a well-sized family home with flexibility in layout, potentially incorporating open-plan living areas, multiple bedrooms, and modern amenities across two storeys, subject to the approved design.
There is a CIL liability on the site however, it is worth noting that exemptions may be available for self-builders, provided the appropriate application is made and conditions are met.
Directions
Sat Nav - SY8 1JZ
What3Words (driveway)///undercuts.cult.enthused
What3Words (plot)///racetrack.grit.caked
Steventon New Road, Ludlow, Shropshire
NEAREST STATIONS
Distances are straight line measurements from the centre of the postcode- Ludlow Station0.6 miles



Notes
Disclaimer - Property reference LBH250066. The information displayed about this property comprises a property advertisement. Rightmove.co.uk makes no warranty as to the accuracy or completeness of the advertisement or any linked or associated information, and Rightmove has no control over the content. This property advertisement does not constitute property particulars. The information is provided and maintained by Nock Deighton, Land and New Homes, Bridgnorth. Please contact the selling agent or developer directly to obtain any information which may be available under the terms of The Energy Performance of Buildings (Certificates and Inspections) (England and Wales) Regulations 2007 or the Home Report if in relation to a residential property in Scotland.
Map data ©OpenStreetMap contributors.





