
Parliament Street, Crediton, EX17

- PROPERTY TYPE
Town House
- BEDROOMS
3
- BATHROOMS
1
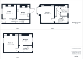
- SIZE
786 sq ft
73 sq m
- TENUREDescribes how you own a property. There are different types of tenure - freehold, leasehold, and commonhold.Read more about tenure in our glossary page.
Freehold
Key features
- Period town house
- 3 Bedrooms
- Outbuilding
- Modern Kitchen
- Re-decorated throughout
- Excellent storage
- Close to town square & amenities
- Gas central heating
- uPVC double glazing
- No onward chain!
Description
Parliament Street is perfectly located just off the bustling town square with shops, cafes and a twice monthly farmers market. This townhouse retains many period features and has a flexible layout with the convenience of an outside storage shed. The property has recently been re-decorated throughout and is being sold with no onward chain.
The kitchen has beech effect units with an oven and 4 ring gas hob, there’s a built in fridge/freezer and a decorative original range cooker. A door leads from the kitchen out to the courtyard. To the front of the ground floor is a lounge with original Victorian fireplace and built in cupboards. On the first floor there is an array of fitted cupboards on the landing leading through to the family bathroom with p-shaped bath with shower over, WC and sink. The large double bedroom to the front could also be utilised as a lounge with plenty of light from the large bay window and a Victorian fireplace. On the top floor there are two bedroom further double bedrooms both with feature fireplaces and the front being the larger of the two has fitted cupboards and stripped floorboards.
The property benefits from gas central heating and uPVC double glazing, (the house is not listed). Outside to the rear there is access over a small courtyard to a brick built storage shed which has power.
Please see the floorplan for room sizes.
Current Council Tax: Band B - Mid Devon 2025/26 - £2,034.67
Utilities: Mains electric, gas, water, telephone & broadband
Broadband within this postcode: Ultrafast 1800mbps
Drainage: Mains drainage
Heating: Mains gas central heating
Listed: No
Conservation Area: Yes
Tenure: Freehold
Buyers' Compliance Fee Notice: Please note that a compliance check fee of £25 (inc. VAT) per person is payable once your offer is accepted. This non-refundable fee covers essential ID verification and anti-money laundering checks, as required by law.
CREDITON is a vibrant market town with a bustling high street full of independent shops, eateries, and pubs. In recent years a diverse arts scene has grown to include all manner of mediums, with the performing arts making use of the town’s market square where, in the summer months, a range of activities take place. The market square is also home to the town’s twice-monthly farmer’s market. The town has an equally significant past. It was originally the first Bishopric in Devon and the imposing Parish Church of The Holy Cross now stands where once stood Devon’s first Saxon cathedral (909-1050AD). It is also the birthplace of Saint Boniface, one of the founding fathers of the Christian church in Europe. Easily commutable to Exeter and with two primary schools, a secondary school with sixth form as well as a wide range of necessary amenities, it’s clear why the town is a firm favourite with locals and relocators alike.
DIRECTIONS : From Crediton High Street take Market Street and bear around to the right, Parliament Street can be found straight ahead and number 15 is the first property on the right.
Sat Nav: EX17 2BP
What3Words: ///burns.claw.repair
EPC Rating: C
Yard
Access over a small courtyard to a brick built storage shed with power.
Brochures
Property Brochure- COUNCIL TAXA payment made to your local authority in order to pay for local services like schools, libraries, and refuse collection. The amount you pay depends on the value of the property.Read more about council Tax in our glossary page.
- Band: B
- PARKINGDetails of how and where vehicles can be parked, and any associated costs.Read more about parking in our glossary page.
- Ask agent
- GARDENA property has access to an outdoor space, which could be private or shared.
- Private garden
- ACCESSIBILITYHow a property has been adapted to meet the needs of vulnerable or disabled individuals.Read more about accessibility in our glossary page.
- Ask agent
Parliament Street, Crediton, EX17
Add an important place to see how long it'd take to get there from our property listings.
__mins driving to your place
Get an instant, personalised result:
- Show sellers you’re serious
- Secure viewings faster with agents
- No impact on your credit score
Your mortgage
Notes
Staying secure when looking for property
Ensure you're up to date with our latest advice on how to avoid fraud or scams when looking for property online.
Visit our security centre to find out moreDisclaimer - Property reference 6ab354d9-a89b-4b71-87ce-52222be18f69. The information displayed about this property comprises a property advertisement. Rightmove.co.uk makes no warranty as to the accuracy or completeness of the advertisement or any linked or associated information, and Rightmove has no control over the content. This property advertisement does not constitute property particulars. The information is provided and maintained by Helmores, Crediton. Please contact the selling agent or developer directly to obtain any information which may be available under the terms of The Energy Performance of Buildings (Certificates and Inspections) (England and Wales) Regulations 2007 or the Home Report if in relation to a residential property in Scotland.
*This is the average speed from the provider with the fastest broadband package available at this postcode. The average speed displayed is based on the download speeds of at least 50% of customers at peak time (8pm to 10pm). Fibre/cable services at the postcode are subject to availability and may differ between properties within a postcode. Speeds can be affected by a range of technical and environmental factors. The speed at the property may be lower than that listed above. You can check the estimated speed and confirm availability to a property prior to purchasing on the broadband provider's website. Providers may increase charges. The information is provided and maintained by Decision Technologies Limited. **This is indicative only and based on a 2-person household with multiple devices and simultaneous usage. Broadband performance is affected by multiple factors including number of occupants and devices, simultaneous usage, router range etc. For more information speak to your broadband provider.
Map data ©OpenStreetMap contributors.







