
Chelfham, Barnstaple

- PROPERTY TYPE
Detached
- BEDROOMS
7
- BATHROOMS
4
- SIZE
Ask agent
- TENUREDescribes how you own a property. There are different types of tenure - freehold, leasehold, and commonhold.Read more about tenure in our glossary page.
Freehold
Key features
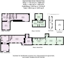
- Wing One; 28' Sitting Room, Dining Room
- Kitchen, 4 Bedrooms, 3 Bathrooms
- Wing Two; 22' Kitchen/Dining Room
- Sitting Room, 3/4 Bedrooms, Shower Room
- Double Garage, Additional Parking
- Extensive decking. Hillside gardens
- PP applied for to create 2 separate dwellings
- South facing site, sun all day
- Council Tax Bands D & A
- Freehold
Description
Situation & Amenities - In terms of location, the property enjoys the best of all worlds, being well detached, in an elevated position commanding fine pastoral views, off a quiet little-used country lane. Chelfham is a Hamlet within the Parish of Bratton Fleming, which is a few minutes by car, and offers general community store, community primary school and church. Exmoor National Park, with its dramatic scenery is a further 5 minutes or so by car, and within about 15/20 minutes is the renowned West Buckland private school. Barnstaple, North Devon’s regional centre is about 10 minutes and houses the area’s main business, commercial, leisure and shopping venues. There is also access to the North Devon Link Road, which runs on in a further 45 minutes or so to Jct.27 of the M5 Motorway and where Tiverton Parkway offers fast service trains to London Paddington in just over 2 hours. Exeter, the county town, with its international airport, excellent shopping and scholastic facilities is some 56 miles away. The dramatic North Devon coast offers many leisure opportunities, with resorts at Croyde, Saunton (also with Championship Golf Course) and Woolacombe about 12, 14 and 15 miles distant respectively.
Description - This unique residence presents elevations mainly of painted render, partially of stone, with double glazed windows throughout, beneath tiled roofs. The generous accommodation is characterful, bright, spacious and versatile, which can be utilised as one substantial single-family residence, or as it is currently as two self-contained wings, suitable for dual occupation by parts of the same family or on a home with income basis. In order to increase options, we understand from the vendors that they have instructed a local firm of architects to apply for planning permission in so that the property can be separated into two attached but separate residential dwellings, capable of being sold individually if appropriate. Within recent times, the secondary unit has been let on a holiday basis and is capable of producing a healthy income, further details of which are available from the Selling Agents upon application.
Accommodation - The layout of the accommodation is more clearly identified upon the accompanying floorplans, but comprises: Wing 1 – ENTRANCE LOBBY giving access to the main LIVING ROOM, which is the heart of the property and a very large room with high ceiling, featuring painted beam. There is a wood burner, wood effect flooring and staircase rising to First Floor (described later). Off this is a LOBBY and Ground Floor BEDROOM with ENSUITE BATHROOM with modern 3-piece suite. This room is ideal for those who cannot manage stairs or for future-proofing. There is a generous through KITCHEN/DINING ROOM in two distinct zones, separated by an open archway. The KITCHEN is fitted with an extensive range of base units in a royal blue theme. There is space for a range cooker, plumbing for dishwasher and this opens into the DINING zone, with dual aspect and sliding patio doors leading to the FRONT GARDEN area. On the First Floor are THREE FURTHER DOUBLE BEDROOMS – the larger having the benefit of an ENSUITE SHOWER ROOM. There is also a FAMILY SHOWER ROOM. Wing 2 – on the Ground Floor provides a light and airy LIVING ROOM with a SHOWER ROOM off. Steps leads to a modern KITCHEN/DINING ROOM with ample units and appliance space, as well as good size area for a dining table. Also off the living area, steps lead to a large BEDROOM. The main staircase leads to the First Floor and to two further BEDROOMS and a LARGE ROOM which has a wc and washbasin within it, but could become a FURTHER BEDROOM or if fitted further, a large family bathroom.
Outside - The property is approached by its own private driveway, leading to a large parking and turning area with space for multiple vehicles, and pair of GARAGES. To the front of the house, there is a level area of GARDEN, large timber DECKING with balustrade looking out over the valley, further lawned and PATIO area. To the front of the secondary wing, they too have their own area of PATIO STYLE GARDEN and to the rear of the property there is access to an elevated area, which has a sunken seating/dining area – ideal for social gatherings and again benefitting from superb views.
Services - Mains electricity and water. Private drainage. According to Ofcom Ultrafast broadband is available in the area, and there is limited mobile signal. For further information please visit
Directions - W3W//////prepped.revamped.motivates
From Barnstaple town centre continue up Bear Street, into Goodleigh Road, following the road towards Bratton Fleming. As you reach Chelfham Mill viaduct, turn right signposted Stoke Rivers and Brayford. After a short distance, bear left after passing beneath the viaduct. Bear first left, climb the hill and the entrance to the Old Coach House will eventually be seen on the left-hand side. The access turns sharply to the left, and the property is set above the lane.
Brochures
Chelfham, Barnstaple- COUNCIL TAXA payment made to your local authority in order to pay for local services like schools, libraries, and refuse collection. The amount you pay depends on the value of the property.Read more about council Tax in our glossary page.
- Band: A
- PARKINGDetails of how and where vehicles can be parked, and any associated costs.Read more about parking in our glossary page.
- Yes
- GARDENA property has access to an outdoor space, which could be private or shared.
- Yes
- ACCESSIBILITYHow a property has been adapted to meet the needs of vulnerable or disabled individuals.Read more about accessibility in our glossary page.
- Ask agent
Chelfham, Barnstaple
Add an important place to see how long it'd take to get there from our property listings.
__mins driving to your place
Get an instant, personalised result:
- Show sellers you’re serious
- Secure viewings faster with agents
- No impact on your credit score
Your mortgage
Notes
Staying secure when looking for property
Ensure you're up to date with our latest advice on how to avoid fraud or scams when looking for property online.
Visit our security centre to find out moreDisclaimer - Property reference 33990266. The information displayed about this property comprises a property advertisement. Rightmove.co.uk makes no warranty as to the accuracy or completeness of the advertisement or any linked or associated information, and Rightmove has no control over the content. This property advertisement does not constitute property particulars. The information is provided and maintained by Stags, Barnstaple. Please contact the selling agent or developer directly to obtain any information which may be available under the terms of The Energy Performance of Buildings (Certificates and Inspections) (England and Wales) Regulations 2007 or the Home Report if in relation to a residential property in Scotland.
*This is the average speed from the provider with the fastest broadband package available at this postcode. The average speed displayed is based on the download speeds of at least 50% of customers at peak time (8pm to 10pm). Fibre/cable services at the postcode are subject to availability and may differ between properties within a postcode. Speeds can be affected by a range of technical and environmental factors. The speed at the property may be lower than that listed above. You can check the estimated speed and confirm availability to a property prior to purchasing on the broadband provider's website. Providers may increase charges. The information is provided and maintained by Decision Technologies Limited. **This is indicative only and based on a 2-person household with multiple devices and simultaneous usage. Broadband performance is affected by multiple factors including number of occupants and devices, simultaneous usage, router range etc. For more information speak to your broadband provider.
Map data ©OpenStreetMap contributors.









