
5 bedroom end of terrace house for sale
84 Main Street, Dairsie

- PROPERTY TYPE
End of Terrace
- BEDROOMS
5
- BATHROOMS
5
- SIZE
2,583 sq ft
240 sq m
- TENUREDescribes how you own a property. There are different types of tenure - freehold, leasehold, and commonhold.Read more about tenure in our glossary page.
Freehold
Key features
- Substantially extended end terraced cottage
- Currently being operated as a Bed & Breakfast
- Excellent views over countryside and beyond
- 3 Public rooms
- 5 Bedrooms (4 en suite)
- Fitted kitchen
- Family bathroom
- Excellent Basement storage room
- Parking for several vehicles and area of garden
- Bio mass heating and double glazing
Description
Number eighty-four is an amazing, extended cottage which is currently being operated as a Bed & Breakfast but offers excellent family accommodation and also potential to operate as an HMO.
The property offers excellent views over open countryside and is an ideal base for commuting to St Andrews 6 miles, Dundee 10 miles and Cupar 3 miles.
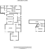
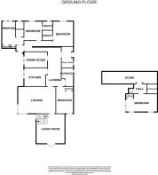
The property is entered into the entrance hallway which leads to Bedrooms 1 -3 which all offer windows to the front and en suite shower rooms all with electric showers. Bedroom four offers window to the side and rear, wardrobe facilities with mirrored sliding doors. The family bathroom offers a W.C. and wash hand basin set within vanity unit and bath with separate double shower cubicle and electric shower, opaque window to the side. The kitchen is fitted with cream base and wall units, stainless steel sink and drainer, rangemaster oven and 5 ring hob with extractor above, Island breakfast bar, integral dishwasher and fridge freezer. Utility room base units, stainless steel sink. Window over looks and door leads to the side. The dining room offers a double widow to the side and hatch to kitchen. The lounge offers a corner window with stunning views, log burning stove set within feature stone fireplace and seating area along one wall. Sitting room which offers a Juliet Balcony to the rear and window to the side. Steps lead down to the ground level where a door leads to the side entrance. Bedroom five offers a window to the rear and side and sliding wardrobe facilities. En suite shower room with wash hand basin and W.C., window to the side. The excellent storage room offers power and light.
The property offers a Bio mass central heating system, electric car charging point.
To the front there is a monoblocked area. A shared driveway to the side of the property leads to the parking area with space for up to 4 vehicles.
Bedroom 1 - 2.471 x 4.471 (8'1" x 14'8" ) -
En Suite - 1.511 x 2.891 (4'11" x 9'5" ) -
Bedroom 2 - 3.477 x 3.205 (11'4" x 10'6" ) -
En Suite - 1.968 x 1.977 (6'5" x 6'5" ) -
Bedroom 3 - 4.706 x 3.712 (15'5" x 12'2" ) -
En Suite - 1.942 x 1.687 (6'4" x 5'6" ) -
Bedroom 4 - 3.295 x 5.060 (10'9" x 16'7" ) -
Bedroom 5 - 3.395 x 5.302 (11'1" x 17'4" ) -
En Suite - 1.682 x 1.983 (5'6" x 6'6" ) -
Family Bathroom - 2.308 x 3.463 (7'6" x 11'4" ) -
Lounge - 7.022 x 5.058 (23'0" x 16'7" ) -
Dining Room - 4.400 x 2.988 (14'5" x 9'9" ) -
Kitchen - 3.0484 x 4.396 (10'0" x 14'5" ) -
Sitting Room - 5.562 x 5.326 (18'2" x 17'5" ) -
Utility - 4.380 x 2.346 (14'4" x 7'8" ) -
Store Room - 2.360 x 10.310 (7'8" x 33'9" ) -
Brochures
84 Main Street, Dairsie Brochure- COUNCIL TAXA payment made to your local authority in order to pay for local services like schools, libraries, and refuse collection. The amount you pay depends on the value of the property.Read more about council Tax in our glossary page.
- Band: D
- PARKINGDetails of how and where vehicles can be parked, and any associated costs.Read more about parking in our glossary page.
- Yes
- GARDENA property has access to an outdoor space, which could be private or shared.
- Yes
- ACCESSIBILITYHow a property has been adapted to meet the needs of vulnerable or disabled individuals.Read more about accessibility in our glossary page.
- Ask agent
84 Main Street, Dairsie
Add an important place to see how long it'd take to get there from our property listings.
__mins driving to your place
Get an instant, personalised result:
- Show sellers you’re serious
- Secure viewings faster with agents
- No impact on your credit score
Your mortgage
Notes
Staying secure when looking for property
Ensure you're up to date with our latest advice on how to avoid fraud or scams when looking for property online.
Visit our security centre to find out moreDisclaimer - Property reference 33003390. The information displayed about this property comprises a property advertisement. Rightmove.co.uk makes no warranty as to the accuracy or completeness of the advertisement or any linked or associated information, and Rightmove has no control over the content. This property advertisement does not constitute property particulars. The information is provided and maintained by Rollos, Cupar. Please contact the selling agent or developer directly to obtain any information which may be available under the terms of The Energy Performance of Buildings (Certificates and Inspections) (England and Wales) Regulations 2007 or the Home Report if in relation to a residential property in Scotland.
*This is the average speed from the provider with the fastest broadband package available at this postcode. The average speed displayed is based on the download speeds of at least 50% of customers at peak time (8pm to 10pm). Fibre/cable services at the postcode are subject to availability and may differ between properties within a postcode. Speeds can be affected by a range of technical and environmental factors. The speed at the property may be lower than that listed above. You can check the estimated speed and confirm availability to a property prior to purchasing on the broadband provider's website. Providers may increase charges. The information is provided and maintained by Decision Technologies Limited. **This is indicative only and based on a 2-person household with multiple devices and simultaneous usage. Broadband performance is affected by multiple factors including number of occupants and devices, simultaneous usage, router range etc. For more information speak to your broadband provider.
Map data ©OpenStreetMap contributors.





