
Taynton
- PROPERTY TYPE
Plot
- BEDROOMS
5
- SIZE
Ask agent
Key features
- Dutch Barn with Full Planning Permission
- To Create a Five Bedroom Dwelling
- Approximately Two and a Half Acres
- Outbuildings
- Beautiful Countryside Location
- EPC Rating - N/A, Council Tax - TBC, Freehold
Description
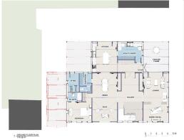
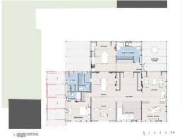
Description - Conversion of current barn to a one of a kind spacious Dutch barn, offering tremendous living space with five bedrooms, four having en-suites.
Outside - Various outbuildings provide fantastic storage and the barn is set within approximately two and a half acres.
Dutch Barn - 18.29m x 8.97m (60'0 x 29'5) -
Room 1 Attached To Dutch Barn - 13.72m x 5.51m (45'0 x 18'1) -
Room 2 Attached To Dutch Barn - 5.54m x 4.50m (18'2 x 14'9) -
Ancillary Barn - 10.74m x 5.82m (35'3 x 19'1) -
Outbuilding Opposite Dutch Barn - 20.45m x 5.51m (67'1 x 18'1) -
Agent's Note - The boundary is not 100% accurate and could possibly be altered, subject to the vendor's acceptance.
Planning permission granted - see Forest of Dean Planning Portal Ref PO243/23/FUL.
Services - The in-going purchaser will need to make their own enquiries and works in relation to services.
Mobile Phone Coverage / Broadband Availability - It is down to each individual purchaser to make their own enquiries.
Tenure - Freehold.
Viewing - Strictly through the Owners Selling Agent, Steve Gooch, who will be delighted to escort interested applicants to view if required. Office Opening Hours 8.30am - 7.00pm Monday to Friday, 9.00am - 5.30pm Saturday.
Directions - From Gloucester, proceed through the village of Highnam and continue along the B4215 for 1/2 miles turning left into Butrermilk Lane. Continue along for a couple of miles, where the driveway to the complex can be found on the right hand side signposted Green Croft Farm.
Property Surveys - Qualified Chartered Surveyors (with over 20 years experience) available to undertake surveys (to include Mortgage Surveys/RICS Housebuyers Reports/Full Structural Surveys).
Awaiting Vendor Approval - These details are yet to be approved by the vendor. Please contact the office for verified details.
Brochures
TayntonTaynton
NEAREST STATIONS
Distances are straight line measurements from the centre of the postcode- Gloucester Station6.8 miles
Notes
Disclaimer - Property reference 34001947. The information displayed about this property comprises a property advertisement. Rightmove.co.uk makes no warranty as to the accuracy or completeness of the advertisement or any linked or associated information, and Rightmove has no control over the content. This property advertisement does not constitute property particulars. The information is provided and maintained by Steve Gooch Estate Agents, Newent. Please contact the selling agent or developer directly to obtain any information which may be available under the terms of The Energy Performance of Buildings (Certificates and Inspections) (England and Wales) Regulations 2007 or the Home Report if in relation to a residential property in Scotland.
Map data ©OpenStreetMap contributors.










