
4 bedroom detached bungalow for sale
Wandleys Lane, Walberton, BN18

- PROPERTY TYPE
Detached Bungalow
- BEDROOMS
4
- BATHROOMS
3
- SIZE
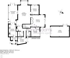
1,668 sq ft
155 sq m
- TENUREDescribes how you own a property. There are different types of tenure - freehold, leasehold, and commonhold.Read more about tenure in our glossary page.
Freehold
Key features
- Versatile detached bungalow
- Three/four reception rooms
- Three/four bedrooms
- Bathroom/WC and two further shower rooms/WC
- Lovely gardens
- Garage and driveway
- Popular location
- Viewing recommended
Description
Stunning extended detached bungalow set in mature gardens located in the 6 villages area.
Set in a desirable and peaceful location, this beautifully presented extended three/four bedroom detached bungalow offers an exceptional blend of style, space and versatility. Situated on the outskirts of the charming village of Walberton, residents enjoy easy access to local amenities.
The extended accommodation offered is bright, spacious and versatile. The property opens into a welcoming entrance porch leading to a well-equipped utility area and a contemporary kitchen featuring high-gloss units and integrated appliances. French doors open into a bright garden room with dual access to the beautifully landscaped gardens and a sliding door into the elegant sitting/dining room. The generous sitting room features a charming bay window and leads to two bedroom. Bedroom one offers sliding doors to the garden and a stylish en-suite with a double shower. Bedroom two also enjoys its own en-suite, while bedroom four, currently used as a dressing room, opens directly to the garden, making it ideal as a guest room or home office.
The wrap-around mature gardens are a true highlight, filled with vibrant flowers, established shrubs, manicured hedges and a tranquil water fountain. Completing the package is a large garage/workshop and a driveway. Additional benefits include solar panels, adding to the home’s efficiency.
This is a rare opportunity to secure a flexible and immaculately maintained home in a sought-after village setting. An early viewing is highly recommended.
Arun District Council - 25/26 Tax Band E £2,907.86 EPC-A
Directions - From Chichester proceed east on the A27. On reaching the Fontwell roundabout take the second exit into Arundel Road (signposted Fontwell village). Proceed over the mini roundabout and at the next mini roundabout turn right into West Walberton Lane. Take the first turning on the right into Wandleys Lane and after a short distance the property is on the right. what3words - remark.chairs.constrain
EPC Rating: A
Parking - Garage
Parking - Driveway
Brochures
Property Brochure- COUNCIL TAXA payment made to your local authority in order to pay for local services like schools, libraries, and refuse collection. The amount you pay depends on the value of the property.Read more about council Tax in our glossary page.
- Band: E
- PARKINGDetails of how and where vehicles can be parked, and any associated costs.Read more about parking in our glossary page.
- Garage,Driveway
- GARDENA property has access to an outdoor space, which could be private or shared.
- Private garden
- ACCESSIBILITYHow a property has been adapted to meet the needs of vulnerable or disabled individuals.Read more about accessibility in our glossary page.
- Ask agent
Energy performance certificate - ask agent
Wandleys Lane, Walberton, BN18
Add an important place to see how long it'd take to get there from our property listings.
__mins driving to your place
Get an instant, personalised result:
- Show sellers you’re serious
- Secure viewings faster with agents
- No impact on your credit score
Your mortgage
Notes
Staying secure when looking for property
Ensure you're up to date with our latest advice on how to avoid fraud or scams when looking for property online.
Visit our security centre to find out moreDisclaimer - Property reference e9a7d40f-d4d7-48e8-b76b-3ac9cbcad65d. The information displayed about this property comprises a property advertisement. Rightmove.co.uk makes no warranty as to the accuracy or completeness of the advertisement or any linked or associated information, and Rightmove has no control over the content. This property advertisement does not constitute property particulars. The information is provided and maintained by Henry Adams, Chichester. Please contact the selling agent or developer directly to obtain any information which may be available under the terms of The Energy Performance of Buildings (Certificates and Inspections) (England and Wales) Regulations 2007 or the Home Report if in relation to a residential property in Scotland.
*This is the average speed from the provider with the fastest broadband package available at this postcode. The average speed displayed is based on the download speeds of at least 50% of customers at peak time (8pm to 10pm). Fibre/cable services at the postcode are subject to availability and may differ between properties within a postcode. Speeds can be affected by a range of technical and environmental factors. The speed at the property may be lower than that listed above. You can check the estimated speed and confirm availability to a property prior to purchasing on the broadband provider's website. Providers may increase charges. The information is provided and maintained by Decision Technologies Limited. **This is indicative only and based on a 2-person household with multiple devices and simultaneous usage. Broadband performance is affected by multiple factors including number of occupants and devices, simultaneous usage, router range etc. For more information speak to your broadband provider.
Map data ©OpenStreetMap contributors.








