
Hollins Close, Hampsthwaite, Harrogate, North Yorkshire, HG3

- PROPERTY TYPE
Bungalow
- BEDROOMS
3
- BATHROOMS
1
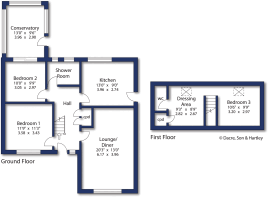
- SIZE
1,216 sq ft
113 sq m
- TENUREDescribes how you own a property. There are different types of tenure - freehold, leasehold, and commonhold.Read more about tenure in our glossary page.
Freehold
Key features
- Spacious semi-detached bungalow
- Two reception rooms
- Well-appointed kitchen
- Two / three bedrooms
- Bathroom and cloakroom
- Parking and garage
- Prime village location
- No onward chain
Description
With gas fired heating and double glazing this deceptively spacious semi-detached bungalow will appeal to retirement purchasers and those buyers seeking to extend and create a larger family home in this highly regarded neighbourhood.
A central reception hall leads to a spacious sitting room, kitchen, two ground floor bedrooms, a conservatory and house bathroom.
At first floor level there is an excellent suite of 'bonus' rooms which could be utilised for bedroom and recreational purposes also having the benefit of a guest cloakroom.
A private side driveway provided extensive visitor car parking to the front of a garage and ornamental lawned gardens to the front and rear of the property form ideal and safe play areas for children and pets.
Hampsthwaite is a continually popular village for buyers of all age groups as a direct result of its strong community spirit and excellent amenities including a bustling village store, coffee shop, public house, village hall and education at primary level. The busy commuter will appreciate ease of access to major commercial centres.
Directions
Proceeding into Hampsthwaite on Hollins Lane, Hollins Close will be identified on the right hand side where our property will be found by the For Sale board.
What3Words fabricate.eats.kicks
Local Authority & Council Tax Band
• North Yorkshire County Council ,
• Council Tax Band D
Tenure, Services & Parking
• Freehold
• Mains gas, water and drainage
• Driveway and garage
Internet & Mobile Coverage
For information on Internet and Mobile coverage access the Ofcom website from this link
Flooding
For information on flood risks please use this link Check for flooding in England - GOV.UK
Agent’s Notes
If any issue such as location, communications or condition of the property are of material importance to your decision to view then please discuss these priorities with us before making arrangements to view.
Buyer Anti Money Laundering Checks
We are required by HMRC to undertake Anti Money Laundering checks for all buyers to the contract. These checks are carried out through iamproperty who will make a charge of £26.10 inclusive of VAT per buyer. We will also need to see proof of funding. We cannot mark a property Sold Subject to Contract until the checks have been satisfactorily completed.
Referral Fees
Where we refer a seller/s or a purchaser/s to any of the following providers (and you are welcome to use an alternative), we reserve the right to claim a reasonable commission in respect of such services which will be charged to the third party provider:- Conveyancing Provider to deal with the transfer of title and Surveyor Services. In either instance the fee/commission will not exceed £450 per case. In respect of referrals to Mortgage Advice Bureau the average fee will be approximately £450 but may vary and is case specific. Any such commission does not affect our prices to you but may result in the third party provider’s prices being higher than it may otherwise be.
Dacres Ref: HAR250242
Proceeding into Hampsthwaite on Hollins Lane, Hollins Close will be identified on the right hand side where our property will be found by the For Sale board.
Brochures
Particulars- COUNCIL TAXA payment made to your local authority in order to pay for local services like schools, libraries, and refuse collection. The amount you pay depends on the value of the property.Read more about council Tax in our glossary page.
- Band: D
- PARKINGDetails of how and where vehicles can be parked, and any associated costs.Read more about parking in our glossary page.
- Yes
- GARDENA property has access to an outdoor space, which could be private or shared.
- Yes
- ACCESSIBILITYHow a property has been adapted to meet the needs of vulnerable or disabled individuals.Read more about accessibility in our glossary page.
- Ask agent
Hollins Close, Hampsthwaite, Harrogate, North Yorkshire, HG3
Add an important place to see how long it'd take to get there from our property listings.
__mins driving to your place
Get an instant, personalised result:
- Show sellers you’re serious
- Secure viewings faster with agents
- No impact on your credit score
Your mortgage
Notes
Staying secure when looking for property
Ensure you're up to date with our latest advice on how to avoid fraud or scams when looking for property online.
Visit our security centre to find out moreDisclaimer - Property reference HAR250242. The information displayed about this property comprises a property advertisement. Rightmove.co.uk makes no warranty as to the accuracy or completeness of the advertisement or any linked or associated information, and Rightmove has no control over the content. This property advertisement does not constitute property particulars. The information is provided and maintained by Dacre Son & Hartley, Harrogate. Please contact the selling agent or developer directly to obtain any information which may be available under the terms of The Energy Performance of Buildings (Certificates and Inspections) (England and Wales) Regulations 2007 or the Home Report if in relation to a residential property in Scotland.
*This is the average speed from the provider with the fastest broadband package available at this postcode. The average speed displayed is based on the download speeds of at least 50% of customers at peak time (8pm to 10pm). Fibre/cable services at the postcode are subject to availability and may differ between properties within a postcode. Speeds can be affected by a range of technical and environmental factors. The speed at the property may be lower than that listed above. You can check the estimated speed and confirm availability to a property prior to purchasing on the broadband provider's website. Providers may increase charges. The information is provided and maintained by Decision Technologies Limited. **This is indicative only and based on a 2-person household with multiple devices and simultaneous usage. Broadband performance is affected by multiple factors including number of occupants and devices, simultaneous usage, router range etc. For more information speak to your broadband provider.
Map data ©OpenStreetMap contributors.






